Woning Taftstraat 3 Helmond

Taftstraat 3, 5705KE Helmond

Ontvang updates voor Annabuurt en Suytkade

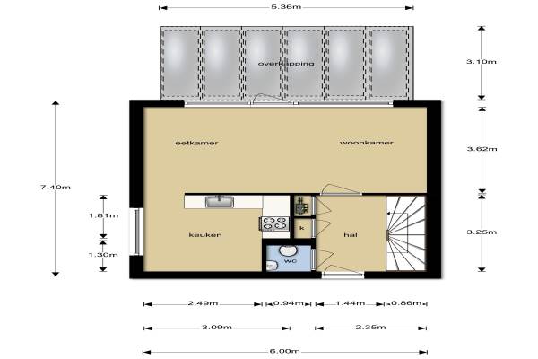
Het adres van deze woning uit 2012 is Taftstraat 3 te Helmond. Het pand heeft een oppervlakte van 96m² en een perceeloppervlakte van 103m² en heeft 4 kamers kamers waarvan 3 slaapkamers. De geschatte waarde van deze woning is € 219.000.

Bekijk alle woningen in Annabuurt en Suytkade

Gegevens van Eengezinswoning, eindwoning

Bouwjaar
2012
Geschatte waarde
€ 219.000
Oppervlakte
96 m2
Inhoud
371 m3
Aantal kamers
4 kamers
Slaapkamers
3
Badkamers
2 badkamers en 1 apart toilet
Soort bouw
Bestaande bouw
Eigendomssituatie
Volle eigendom
Ligging
Aan rustige weg en in woonwijk
Tuin
Achtertuin
Achtertuin
52 m² (8m diep en 6,5m breed)

Voorzieningen in de buurt

Boodschappen0,6 km
Grote supermarkt0,5 km
Cafetaria0,6 km
Restaurant0,5 km
Huisarts1,0 km
Ziekenhuis2,1 km
Kinderdagverblijf1,2 km
BSO1,2 km
Alle voorzieningen in Annabuurt en Suytkade

Binnenkijken bij Taftstraat 3 te Helmond

Meer meldingen in deze omgeving

112 melding
Woensdag 11-3-2026 om 11:28
Suytboulevard, 5705KG Helmond

Nieuw bedrijf
Maart 2026
Frontonstraat 20, 5705KH Helmond

Binnenkijken bij
Zaterdag 7-3-2026
Palladio 74, 5705KK Helmond

112 melding
Vrijdag 6-3-2026 om 04:57
Generaal Pattonstraat, 5705BM Helmond

112 melding
Vrijdag 6-3-2026 om 04:56
Generaal Pattonstraat, 5705BM Helmond

112 melding
Vrijdag 6-3-2026 om 04:48
Generaal Pattonstraat, 5705BM Helmond

112 melding
Vrijdag 6-3-2026 om 04:46
Spoorstraat, Helmond

Binnenkijken bij
Donderdag 5-3-2026
Suytboulevard 35, 5705KG Helmond

Direct een e-mail ontvangen bij nieuwe meldingen in deze regio?

Meld je dan GRATIS aan voor de Oozo Alert service voor Annabuurt en Suytkade

Instellen

Meer nieuws in Annabuurt en Suytkade

Weten hoe eenvoudig het is om af te vallen? Zonder pillen en smeersels en zonder je in het zweet te werken!
Kijk op eenvoudig-afvallen.nl

© 2012 - 2026 OOZO.nl - info@oozo.nl - Gegevens verwijderen? | Disclaimer | Privacy statement