Woning Stationsstraat 20 Helmond

Stationsstraat 20, 5701MK Helmond

Ontvang updates voor Stationsgebied

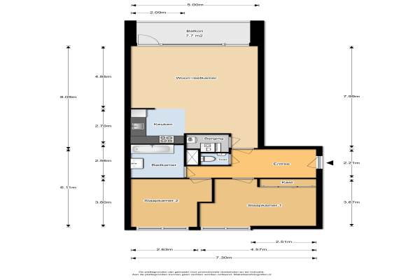
Het adres van deze woning uit 1998 is Stationsstraat 20 te Helmond. Het pand heeft een oppervlakte van 83m² en heeft 3 kamers kamers waarvan 2 slaapkamers. De geschatte waarde van deze woning is € 325.000.

Bekijk alle woningen in Stationsgebied

Gegevens van Portiekflat (appartement)

Bouwjaar
1998
Geschatte waarde
€ 325.000
Oppervlakte
83 m2
Inhoud
273 m3
Aantal kamers
3 kamers
Slaapkamers
2
Badkamers
1 badkamer en 1 apart toilet
Soort bouw
Bestaande bouw
Eigendomssituatie
Volle eigendom
Ligging
In centrum, in woonwijk en vrij uitzicht

Voorzieningen in de buurt

Boodschappen0,2 km
Grote supermarkt0,4 km
Cafetaria0,2 km
Restaurant0,3 km
Huisarts0,4 km
Ziekenhuis1,5 km
Kinderdagverblijf1,0 km
BSO1,0 km
Alle voorzieningen in Stationsgebied

Binnenkijken bij Stationsstraat 20 te Helmond

Meer meldingen in deze omgeving

112 melding
Dinsdag 19-5-2026 om 21:00
Kasteel-Traverse, 5701NR Helmond

112 melding
Dinsdag 19-5-2026 om 15:39
Kasteel-Traverse, 5701NR Helmond

112 melding
Dinsdag 19-5-2026 om 15:19
Kasteel-Traverse, 5701NR Helmond

Binnenkijken bij
Zondag 10-5-2026
de Callenburgh 112, 5701PA Helmond

Binnenkijken bij
Vrijdag 8-5-2026
Smalstraat 103, 5701NX Helmond

Binnenkijken bij
Dinsdag 5-5-2026
de Callenburgh 100, 5701PA Helmond

112 melding
Vrijdag 1-5-2026 om 21:09
Kasteel-Traverse, 5701NR Helmond

112 melding
Woensdag 29-4-2026 om 17:54
Stationsstraat, 5701MK Helmond

Direct een e-mail ontvangen bij nieuwe meldingen in deze regio?

Meld je dan GRATIS aan voor de Oozo Alert service voor Stationsgebied

Instellen

Meer nieuws in Stationsgebied

Weten hoe eenvoudig het is om af te vallen? Zonder pillen en smeersels en zonder je in het zweet te werken!
Kijk op eenvoudig-afvallen.nl

© 2012 - 2026 OOZO.nl - info@oozo.nl - Gegevens verwijderen? | Disclaimer | Privacy statement