Woning Dasstraat 32 Helmond

Dasstraat 32, 5701VE Helmond

Ontvang updates voor Vossenberg

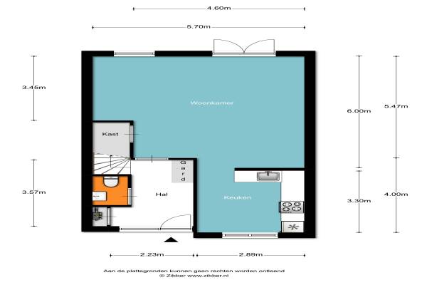
Het adres van deze woning uit 2010 is Dasstraat 32 te Helmond. Het pand heeft een oppervlakte van 140m² en een perceeloppervlakte van 93m² en heeft 5 kamers kamers waarvan 4 slaapkamers. De geschatte waarde van deze woning is € 220.000.

Bekijk alle woningen in Vossenberg

Gegevens van Eengezinswoning, hoekwoning

Bouwjaar
2010
Geschatte waarde
€ 220.000
Oppervlakte
140 m2
Inhoud
450 m3
Aantal kamers
5 kamers
Slaapkamers
4
Badkamers
1 badkamer en 1 apart toilet
Soort bouw
Bestaande bouw
Eigendomssituatie
Volle eigendom
Ligging
Aan rustige weg, in centrum en in woonwijk
Tuin
Achtertuin
Achtertuin
30 m² (6m diep en 5m breed)

Voorzieningen in de buurt

Boodschappen0,2 km
Grote supermarkt0,4 km
Cafetaria0,3 km
Restaurant0,3 km
Huisarts0,5 km
Ziekenhuis2,2 km
Kinderdagverblijf0,4 km
BSO0,5 km
Alle voorzieningen in Vossenberg

Binnenkijken bij Dasstraat 32 te Helmond

Meer meldingen in deze omgeving

Binnenkijken bij
Maandag 6-4-2026
Hemelrijksestraat 87, 5701LE Helmond

Binnenkijken bij
Donderdag 2-4-2026
Zuidende 66, 5701KZ Helmond

112 melding
Donderdag 2-4-2026 om 01:17
Welpenstraat, 5701LZ Helmond

Nieuw bedrijf
Maart 2026
Pastoor van Leeuwenstraat 69, 5701JT Helmond

Binnenkijken bij
Zondag 22-3-2026
Tiendstraat 33, 5701PB Helmond

Binnenkijken bij
Donderdag 19-3-2026
Beelsstraat 38, 5701KV Helmond

Binnenkijken bij
Maandag 9-3-2026
Zuiderstraat 43, 5701LA Helmond

Nieuw bedrijf
Maart 2026
Hindestraat 89, 5701GP Helmond

Direct een e-mail ontvangen bij nieuwe meldingen in deze regio?

Meld je dan GRATIS aan voor de Oozo Alert service voor Vossenberg

Instellen

Meer nieuws in Vossenberg

Weten hoe eenvoudig het is om af te vallen? Zonder pillen en smeersels en zonder je in het zweet te werken!
Kijk op eenvoudig-afvallen.nl

© 2012 - 2026 OOZO.nl - info@oozo.nl - Gegevens verwijderen? | Disclaimer | Privacy statement