Woning Nierslaan 5 Helmond

Nierslaan 5, 5704NJ Helmond

Ontvang updates voor Brouwhuis-Oost

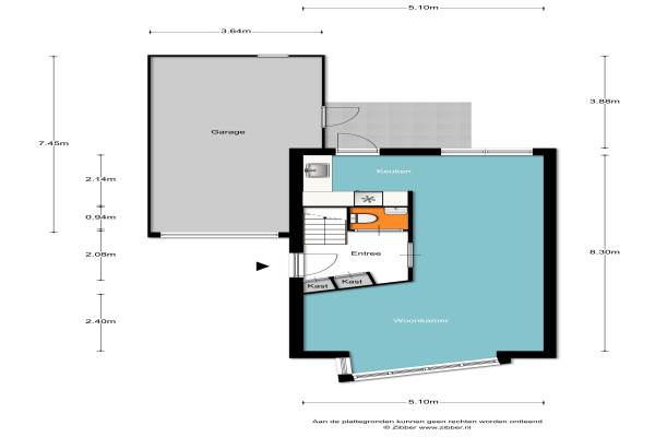
Het adres van deze woning uit 1988 is Nierslaan 5 te Helmond. Het pand heeft een oppervlakte van 115m² en een perceeloppervlakte van 191m² en heeft 5 kamers kamers waarvan 4 slaapkamers. De geschatte waarde van deze woning is € 225.000.

Bekijk alle woningen in Brouwhuis-Oost

Gegevens van Eengezinswoning, geschakelde 2-onder-1-kapwoning

Bouwjaar
1988
Geschatte waarde
€ 225.000
Oppervlakte
115 m2
Inhoud
350 m3
Aantal kamers
5 kamers
Slaapkamers
4
Badkamers
1 badkamer en 1 apart toilet
Soort bouw
Bestaande bouw
Eigendomssituatie
Volle eigendom
Ligging
Aan rustige weg en in woonwijk
Tuin
Achtertuin en voortuin
Achtertuin
60 m² (7,5m diep en 8m breed)

Voorzieningen in de buurt

Boodschappen1,0 km
Grote supermarkt0,7 km
Cafetaria1,0 km
Restaurant0,8 km
Huisarts0,6 km
Ziekenhuis5,6 km
Kinderdagverblijf0,5 km
BSO0,5 km
Alle voorzieningen in Brouwhuis-Oost

Binnenkijken bij Nierslaan 5 te Helmond

Meer meldingen in deze omgeving

Binnenkijken bij
Vrijdag 28-11-2025
Roerstraat 48, 5704MC Helmond

Binnenkijken bij
Dinsdag 25-11-2025
Jekerstraat 49, 5704MJ Helmond

Nieuw bedrijf
November 2025
Maaslaan 145, 5704LC Helmond

Nieuw bedrijf
Oktober 2025
Elbeplantsoen 59N, 5704KX Helmond

Nieuw bedrijf
Oktober 2025
Elbeplantsoen 59B, 5704KX Helmond

Binnenkijken bij
Donderdag 9-10-2025
Dommelstraat 37, 5704NC Helmond

Binnenkijken bij
Donderdag 9-10-2025
Maaslaan 86, 5704LH Helmond

Nieuw bedrijf
Oktober 2025
de Middenloop 44, 5704JC Helmond

Direct een e-mail ontvangen bij nieuwe meldingen in deze regio?

Meld je dan GRATIS aan voor de Oozo Alert service voor Brouwhuis-Oost

Instellen

Meer nieuws in Brouwhuis-Oost

Weten hoe eenvoudig het is om af te vallen? Zonder pillen en smeersels en zonder je in het zweet te werken!
Kijk op eenvoudig-afvallen.nl

© 2012 - 2025 OOZO.nl - info@oozo.nl - Gegevens verwijderen? | Disclaimer | Privacy statement