Woning Arcenlaan 3 Helmond

Arcenlaan 3, 5709RA Helmond

Ontvang updates voor Kern Dierdonk

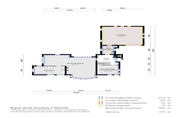
Het adres van deze woning uit 1999 is Arcenlaan 3 te Helmond. Het pand heeft een oppervlakte van 278m² en een perceeloppervlakte van 1104m² en heeft 7 kamers kamers waarvan 6 slaapkamers. De geschatte waarde van deze woning is € 795.000.

Bekijk alle woningen in Kern Dierdonk

Gegevens van Villa, vrijstaande woning

Bouwjaar
1999
Geschatte waarde
€ 795.000
Oppervlakte
278 m2
Inhoud
1173 m3
Aantal kamers
7 kamers
Slaapkamers
6
Badkamers
1 badkamer en 1 apart toilet
Soort bouw
Bestaande bouw
Eigendomssituatie
Volle eigendom
Ligging
Aan rustige weg en in woonwijk
Tuin
Tuin rondom

Voorzieningen in de buurt

Boodschappen2,0 km
Grote supermarkt0,8 km
Cafetaria0,8 km
Restaurant1,9 km
Huisarts0,7 km
Ziekenhuis4,5 km
Kinderdagverblijf0,6 km
BSO0,9 km
Alle voorzieningen in Kern Dierdonk

Binnenkijken bij Arcenlaan 3 te Helmond

Meer meldingen in deze omgeving

Nieuw bedrijf
Maart 2026
Mosbloemsingel 2, 5709PP Helmond

Binnenkijken bij
Dinsdag 3-3-2026
Waterleliesingel 15, 5709PD Helmond

Nieuw bedrijf
Februari 2026
Mosbloemsingel 2, 5709PP Helmond

Nieuw bedrijf
Februari 2026
Wildenborchlaan 44, 5709RR Helmond

112 melding
Zaterdag 21-2-2026 om 10:18
Coendersberglaan, 5709MA Helmond

112 melding
Zaterdag 21-2-2026 om 10:14
Coendersberglaan, 5709MA Helmond

Binnenkijken bij
Donderdag 19-2-2026
Holterbergweide 63, 5709MN Helmond

Binnenkijken bij
Zaterdag 7-2-2026
Rhulenhofweide 36, 5709SH Helmond

Direct een e-mail ontvangen bij nieuwe meldingen in deze regio?

Meld je dan GRATIS aan voor de Oozo Alert service voor Kern Dierdonk

Instellen

Meer nieuws in Kern Dierdonk

Weten hoe eenvoudig het is om af te vallen? Zonder pillen en smeersels en zonder je in het zweet te werken!
Kijk op eenvoudig-afvallen.nl

© 2012 - 2026 OOZO.nl - info@oozo.nl - Gegevens verwijderen? | Disclaimer | Privacy statement