Woning Kasteel-Noord 44 Helmond

Kasteel-Noord 44, 5702NX Helmond

Ontvang updates voor Binderen

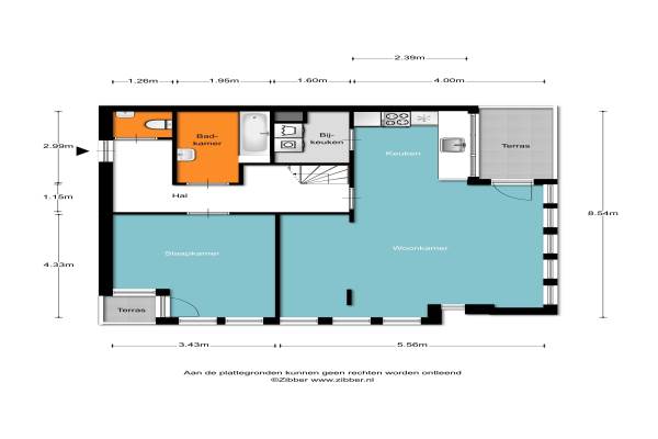
Het adres van deze woning uit 1997 is Kasteel-Noord 44 te Helmond. Het pand heeft een oppervlakte van 105m² en heeft 3 kamers kamers waarvan 2 slaapkamers. De geschatte waarde van deze woning is € 179.000.

Bekijk alle woningen in Binderen

Gegevens van Maisonnette (appartement)

Bouwjaar
1997
Geschatte waarde
€ 179.000
Oppervlakte
105 m2
Inhoud
309 m3
Aantal kamers
3 kamers
Slaapkamers
2
Badkamers
1 badkamer en 1 apart toilet
Soort bouw
Bestaande bouw
Eigendomssituatie
Volle eigendom
Ligging
Aan water en vrij uitzicht

Voorzieningen in de buurt

Boodschappen0,6 km
Grote supermarkt0,7 km
Cafetaria0,6 km
Restaurant0,8 km
Huisarts0,6 km
Ziekenhuis2,2 km
Kinderdagverblijf0,4 km
BSO0,6 km
Alle voorzieningen in Binderen

Binnenkijken bij Kasteel-Noord 44 te Helmond

Meer meldingen in deze omgeving

Nieuw bedrijf
November 2025
Bosselaan 16, 5702NV Helmond

Nieuw bedrijf
November 2025
Nachtegaallaan 32, 5702KN Helmond

Nieuw bedrijf
November 2025
Adelaarplein 9, 5702NH Helmond

Binnenkijken bij
Woensdag 19-11-2025
Sperwerstraat 39, 5702PH Helmond

Nieuw bedrijf
November 2025
Patrijsstraat 3, 5702RN Helmond

Binnenkijken bij
Dinsdag 11-11-2025
Fitisstraat 17, 5702PX Helmond

112 melding
Maandag 3-11-2025 om 16:36
Goudvinkstraat, 5702RH Helmond

Binnenkijken bij
Woensdag 29-10-2025
Nachtegaallaan 129, 5702KK Helmond

Direct een e-mail ontvangen bij nieuwe meldingen in deze regio?

Meld je dan GRATIS aan voor de Oozo Alert service voor Binderen

Instellen

Meer nieuws in Binderen

Weten hoe eenvoudig het is om af te vallen? Zonder pillen en smeersels en zonder je in het zweet te werken!
Kijk op eenvoudig-afvallen.nl

© 2012 - 2025 OOZO.nl - info@oozo.nl - Gegevens verwijderen? | Disclaimer | Privacy statement