Woning Sallandhof 58 Helmond

Sallandhof 58, 5709LB Helmond

Ontvang updates voor Rijpelberg-West

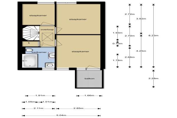
Het adres van deze woning uit 1982 is Sallandhof 58 te Helmond. Het pand heeft een oppervlakte van 87m² en een perceeloppervlakte van 175m² en heeft 4 kamers kamers waarvan 3 slaapkamers. De geschatte waarde van deze woning is € 185.000.

Bekijk alle woningen in Rijpelberg-West

Gegevens van Eengezinswoning, eindwoning

Bouwjaar
1982
Geschatte waarde
€ 185.000
Oppervlakte
87 m2
Inhoud
333 m3
Aantal kamers
4 kamers
Slaapkamers
3
Badkamers
1 badkamer
Soort bouw
Bestaande bouw
Eigendomssituatie
Volle eigendom
Ligging
Aan bosrand en aan rustige weg
Tuin
Achtertuin en voortuin
Achtertuin
83 m² (15m diep en 5,5m breed)

Voorzieningen in de buurt

Boodschappen1,0 km
Grote supermarkt0,9 km
Cafetaria0,8 km
Restaurant0,9 km
Huisarts0,7 km
Ziekenhuis5,1 km
Kinderdagverblijf0,4 km
BSO0,4 km
Alle voorzieningen in Rijpelberg-West

Binnenkijken bij Sallandhof 58 te Helmond

Meer meldingen in deze omgeving

Binnenkijken bij
Dinsdag 5-5-2026
Kennemerland 29, 5709KZ Helmond

Binnenkijken bij
Dinsdag 5-5-2026
Twentehof 6, 5709KL Helmond

Binnenkijken bij
Dinsdag 5-5-2026
Kennemerland 22, 5709KZ Helmond

112 melding
Dinsdag 28-4-2026 om 16:02
Masterode, 5709HX Helmond

112 melding
Dinsdag 28-4-2026 om 15:59
Masterode, 5709HX Helmond

112 melding
Dinsdag 28-4-2026 om 15:43
Masterode, 5709HX Helmond

Nieuw bedrijf
April 2026
Twijnsterhof 61, 5709GW Helmond

112 melding
Maandag 20-4-2026 om 09:18
Nemerlaerhof, Helmond

Direct een e-mail ontvangen bij nieuwe meldingen in deze regio?

Meld je dan GRATIS aan voor de Oozo Alert service voor Rijpelberg-West

Instellen

Meer nieuws in Rijpelberg-West

Weten hoe eenvoudig het is om af te vallen? Zonder pillen en smeersels en zonder je in het zweet te werken!
Kijk op eenvoudig-afvallen.nl

© 2012 - 2026 OOZO.nl - info@oozo.nl - Gegevens verwijderen? | Disclaimer | Privacy statement