Woning Wierde 24 Hendrik-Ido-Ambacht

Wierde 24, 3344EC Hendrik-Ido-Ambacht

Ontvang updates voor Volgerlanden-West

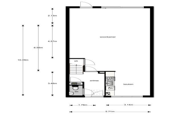
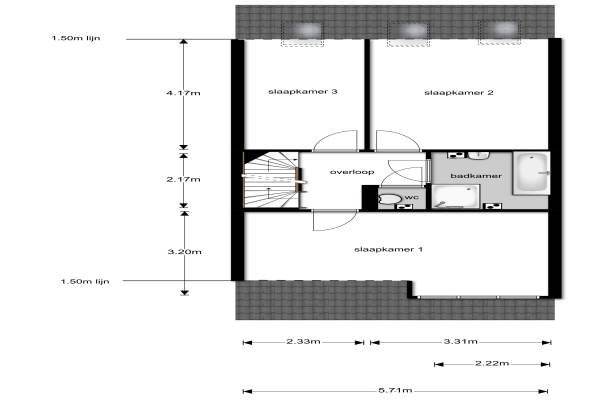
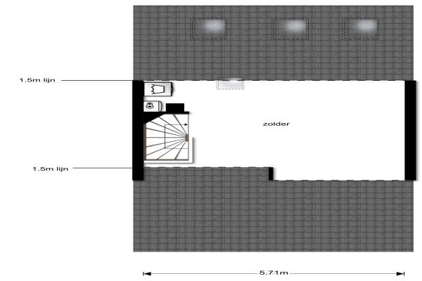
Het adres van deze woning uit 2005 is Wierde 24 te Hendrik-Ido-Ambacht. Het pand heeft een oppervlakte van 151m² en een perceeloppervlakte van 213m² en heeft 5 kamers kamers waarvan 4 slaapkamers. De geschatte waarde van deze woning is € 415.000.

Bekijk alle woningen in Volgerlanden-West

Gegevens van Eengezinswoning, tussenwoning

Bouwjaar
2005
Geschatte waarde
€ 415.000
Oppervlakte
151 m2
Inhoud
530 m3
Aantal kamers
5 kamers
Slaapkamers
4
Badkamers
1 badkamer en 2 aparte toiletten
Soort bouw
Bestaande bouw
Eigendomssituatie
Volle eigendom
Ligging
Aan rustige weg en in woonwijk
Tuin
Achtertuin en voortuin
Achtertuin
114 m² (19m diep en 6m breed)

Voorzieningen in de buurt

Boodschappen0,9 km
Grote supermarkt0,9 km
Cafetaria0,8 km
Restaurant0,7 km
Huisarts0,7 km
Ziekenhuis1,4 km
Kinderdagverblijf0,5 km
BSO0,5 km
Alle voorzieningen in Volgerlanden-West

Binnenkijken bij Wierde 24 te Hendrik-Ido-Ambacht

Meer meldingen in deze omgeving

112 melding
Maandag 17-11-2025 om 14:53
Boterbloem, 3344AD Hendrik-Ido-Ambacht

112 melding
Maandag 17-11-2025 om 14:43
Amandelgaarde, 3344RD Hendrik-Ido-Ambacht

112 melding
Maandag 17-11-2025 om 14:36
Akkerviool, 3344AC Hendrik-Ido-Ambacht

112 melding
Maandag 17-11-2025 om 14:27
Iepengaarde, 3344DH Hendrik-Ido-Ambacht

112 melding
Maandag 17-11-2025 om 14:27
Iepengaarde, 3344DH Hendrik-Ido-Ambacht

112 melding
Maandag 17-11-2025 om 14:00
Hoogveen, 3344EP Hendrik-Ido-Ambacht

112 melding
Maandag 17-11-2025 om 13:53
Akkerviool, 3344AC Hendrik-Ido-Ambacht

112 melding
Maandag 17-11-2025 om 12:54
Druivengaarde, 3344PK Hendrik-Ido-Ambacht

Direct een e-mail ontvangen bij nieuwe meldingen in deze regio?

Meld je dan GRATIS aan voor de Oozo Alert service voor Volgerlanden-West

Instellen

Meer nieuws in Volgerlanden-West

Weten hoe eenvoudig het is om af te vallen? Zonder pillen en smeersels en zonder je in het zweet te werken!
Kijk op eenvoudig-afvallen.nl

© 2012 - 2025 OOZO.nl - info@oozo.nl - Gegevens verwijderen? | Disclaimer | Privacy statement