Woning Dadelgaarde 1 Hendrik-Ido-Ambacht

Dadelgaarde 1, 3344RG Hendrik-Ido-Ambacht

Ontvang updates voor Volgerlanden-West

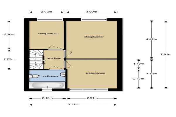
Het adres van deze woning uit 2003 is Dadelgaarde 1 te Hendrik-Ido-Ambacht. Het pand heeft een oppervlakte van 116m² en een perceeloppervlakte van 196m² en heeft 5 kamers kamers waarvan 4 slaapkamers. De geschatte waarde van deze woning is € 335.000.

Bekijk alle woningen in Volgerlanden-West

Gegevens van Eengezinswoning, hoekwoning

Bouwjaar
2003
Geschatte waarde
€ 335.000
Oppervlakte
116 m2
Inhoud
404 m3
Aantal kamers
5 kamers
Slaapkamers
4
Badkamers
1 badkamer en 1 apart toilet
Soort bouw
Bestaande bouw
Eigendomssituatie
Volle eigendom
Ligging
Aan rustige weg en in woonwijk
Tuin
Achtertuin, voortuin en zijtuin
Achtertuin
68 m² (8,5m diep en 8m breed)

Voorzieningen in de buurt

Boodschappen0,9 km
Grote supermarkt0,9 km
Cafetaria0,8 km
Restaurant0,7 km
Huisarts0,7 km
Ziekenhuis1,4 km
Kinderdagverblijf0,5 km
BSO0,5 km
Alle voorzieningen in Volgerlanden-West

Binnenkijken bij Dadelgaarde 1 te Hendrik-Ido-Ambacht

Meer meldingen in deze omgeving

112 melding
Maandag 15-12-2025 om 07:07
Bramengaarde, 3344PH Hendrik-Ido-Ambacht

112 melding
Zondag 14-12-2025 om 18:27
Bramengaarde, 3344PE Hendrik-Ido-Ambacht

112 melding
Zondag 14-12-2025 om 18:10
Bolster, 3344EB Hendrik-Ido-Ambacht

112 melding
Zondag 14-12-2025 om 07:54
Olijfgaarde, 3344RP Hendrik-Ido-Ambacht

112 melding
Zondag 14-12-2025 om 04:46
Sophiapromenade, Hendrik-Ido-Ambacht

112 melding
Zaterdag 13-12-2025 om 16:32
Moerbeigaarde, 3344PJ Hendrik-Ido-Ambacht

112 melding
Zaterdag 13-12-2025 om 16:29
Druivengaarde, 3344PK Hendrik-Ido-Ambacht

112 melding
Zaterdag 13-12-2025 om 16:28
Bramengaarde, 3344PG Hendrik-Ido-Ambacht

Direct een e-mail ontvangen bij nieuwe meldingen in deze regio?

Meld je dan GRATIS aan voor de Oozo Alert service voor Volgerlanden-West

Instellen

Meer nieuws in Volgerlanden-West

Weten hoe eenvoudig het is om af te vallen? Zonder pillen en smeersels en zonder je in het zweet te werken!
Kijk op eenvoudig-afvallen.nl

© 2012 - 2025 OOZO.nl - info@oozo.nl - Gegevens verwijderen? | Disclaimer | Privacy statement