Woning Dadelgaarde 235 Hendrik-Ido-Ambacht

Dadelgaarde 235, 3344RM Hendrik-Ido-Ambacht

Ontvang updates voor Volgerlanden-West

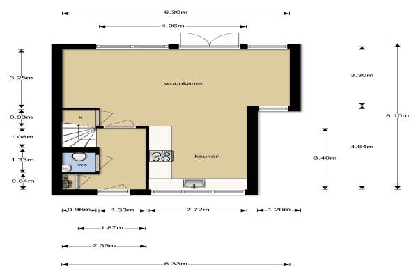
Het adres van deze woning uit 2003 is Dadelgaarde 235 te Hendrik-Ido-Ambacht. Het pand heeft een oppervlakte van 108m² en een perceeloppervlakte van 161m² en heeft 6 kamers kamers waarvan 4 slaapkamers. De geschatte waarde van deze woning is € 300.000.

Bekijk alle woningen in Volgerlanden-West

Gegevens van Eengezinswoning, hoekwoning

Bouwjaar
2003
Geschatte waarde
€ 300.000
Oppervlakte
108 m2
Inhoud
362 m3
Aantal kamers
6 kamers
Slaapkamers
4
Badkamers
1 badkamer en 1 apart toilet
Soort bouw
Bestaande bouw
Eigendomssituatie
Volle eigendom
Ligging
In woonwijk
Tuin
Achtertuin en voortuin
Achtertuin
70 m² (10,4m diep en 6,72m breed)

Voorzieningen in de buurt

Boodschappen0,9 km
Grote supermarkt0,9 km
Cafetaria0,8 km
Restaurant0,7 km
Huisarts0,7 km
Ziekenhuis1,4 km
Kinderdagverblijf0,5 km
BSO0,5 km
Alle voorzieningen in Volgerlanden-West

Binnenkijken bij Dadelgaarde 235 te Hendrik-Ido-Ambacht

Meer meldingen in deze omgeving

112 melding
Donderdag 18-12-2025 om 13:10
Aardbeigaarde, 3344DC Hendrik-Ido-Ambacht

112 melding
Donderdag 18-12-2025 om 13:04
Druivengaarde, 3344PK Hendrik-Ido-Ambacht

112 melding
Donderdag 18-12-2025 om 12:08
Bolster, Hendrik-Ido-Ambacht

112 melding
Donderdag 18-12-2025 om 12:07
Akkerviool, 3344AC Hendrik-Ido-Ambacht

112 melding
Donderdag 18-12-2025 om 11:21
Druivengaarde, 3344PK Hendrik-Ido-Ambacht

112 melding
Donderdag 18-12-2025 om 10:50
Akkerviool, 3344AC Hendrik-Ido-Ambacht

112 melding
Donderdag 18-12-2025 om 09:14
Amandelgaarde, 3344RB Hendrik-Ido-Ambacht

112 melding
Donderdag 18-12-2025 om 09:13
Kersengaarde, 3344PC Hendrik-Ido-Ambacht

Direct een e-mail ontvangen bij nieuwe meldingen in deze regio?

Meld je dan GRATIS aan voor de Oozo Alert service voor Volgerlanden-West

Instellen

Meer nieuws in Volgerlanden-West

Weten hoe eenvoudig het is om af te vallen? Zonder pillen en smeersels en zonder je in het zweet te werken!
Kijk op eenvoudig-afvallen.nl

© 2012 - 2025 OOZO.nl - info@oozo.nl - Gegevens verwijderen? | Disclaimer | Privacy statement