Woning Beukengaarde 15 Hendrik-Ido-Ambacht

Beukengaarde 15, 3344PT Hendrik-Ido-Ambacht

Ontvang updates voor Volgerlanden-West

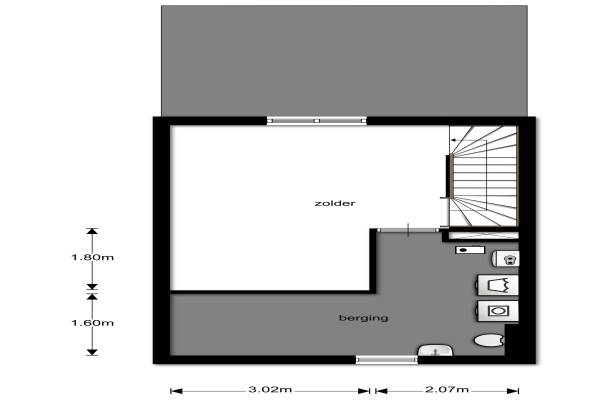
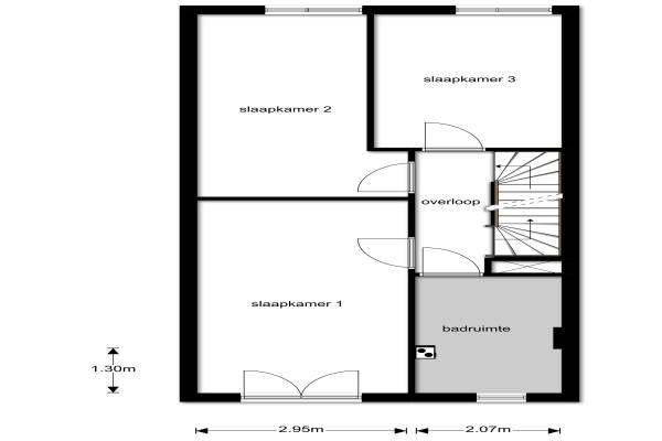
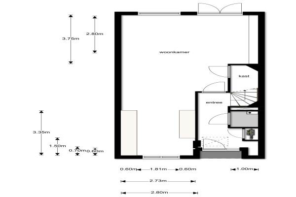
Het adres van deze woning uit 2010 is Beukengaarde 15 te Hendrik-Ido-Ambacht. Het pand heeft een oppervlakte van 130m² en een perceeloppervlakte van 137m² en heeft 6 kamers kamers waarvan 3 slaapkamers. De geschatte waarde van deze woning is € 390.000.

Bekijk alle woningen in Volgerlanden-West

Gegevens van Eengezinswoning, tussenwoning

Bouwjaar
2010
Geschatte waarde
€ 390.000
Oppervlakte
130 m2
Inhoud
465 m3
Aantal kamers
6 kamers
Slaapkamers
3
Badkamers
1 badkamer en 2 aparte toiletten
Soort bouw
Bestaande bouw
Eigendomssituatie
Volle eigendom
Ligging
Aan water, aan rustige weg, in woonwijk, vrij uitzicht en beschutte ligging
Tuin
Achtertuin en voortuin
Achtertuin
71 m² (13m diep en 5,45m breed)

Voorzieningen in de buurt

Boodschappen0,9 km
Grote supermarkt0,9 km
Cafetaria0,8 km
Restaurant0,7 km
Huisarts0,7 km
Ziekenhuis1,4 km
Kinderdagverblijf0,5 km
BSO0,5 km
Alle voorzieningen in Volgerlanden-West

Binnenkijken bij Beukengaarde 15 te Hendrik-Ido-Ambacht

Meer meldingen in deze omgeving

112 melding
Woensdag 12-11-2025 om 08:47
Bonkaarde, 3344GM Hendrik-Ido-Ambacht

112 melding
Woensdag 12-11-2025 om 08:36
Dadelgaarde, 3344RG Hendrik-Ido-Ambacht

112 melding
Woensdag 12-11-2025 om 08:36
Dadelgaarde, 3344RG Hendrik-Ido-Ambacht

112 melding
Woensdag 12-11-2025 om 08:30
Hooftlaantje, Hendrik-Ido-Ambacht

112 melding
Dinsdag 11-11-2025 om 20:32
Bonkaarde, 3344GM Hendrik-Ido-Ambacht

112 melding
Dinsdag 11-11-2025 om 20:12
Morellengaarde, 3344DL Hendrik-Ido-Ambacht

112 melding
Dinsdag 11-11-2025 om 16:57
Dadelgaarde, 3344RM Hendrik-Ido-Ambacht

112 melding
Dinsdag 11-11-2025 om 16:47
Dadelgaarde, 3344RM Hendrik-Ido-Ambacht

Direct een e-mail ontvangen bij nieuwe meldingen in deze regio?

Meld je dan GRATIS aan voor de Oozo Alert service voor Volgerlanden-West

Instellen

Meer nieuws in Volgerlanden-West

Weten hoe eenvoudig het is om af te vallen? Zonder pillen en smeersels en zonder je in het zweet te werken!
Kijk op eenvoudig-afvallen.nl

© 2012 - 2025 OOZO.nl - info@oozo.nl - Gegevens verwijderen? | Disclaimer | Privacy statement