Woning Leonardstraat 44 Hengelo

Leonardstraat 44, 7553XS Hengelo

Ontvang updates voor Berflo Es Zuid

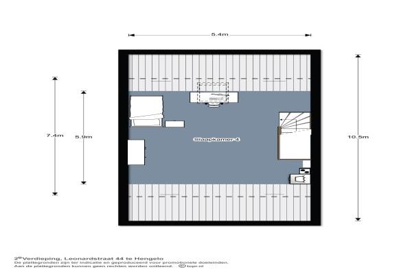
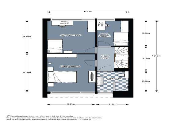
Het adres van deze woning uit 2012 is Leonardstraat 44 te Hengelo. Het pand heeft een oppervlakte van 141m² en een perceeloppervlakte van 122m² en heeft 5 kamers kamers waarvan 4 slaapkamers. De geschatte waarde van deze woning is € 229.500.

Bekijk alle woningen in Berflo Es Zuid

Gegevens van Eengezinswoning, tussenwoning

Bouwjaar
2012
Geschatte waarde
€ 229.500
Oppervlakte
141 m2
Inhoud
529 m3
Aantal kamers
5 kamers
Slaapkamers
4
Badkamers
1 badkamer en 1 apart toilet
Soort bouw
Bestaande bouw
Eigendomssituatie
Volle eigendom
Ligging
Aan rustige weg en in woonwijk
Tuin
Achtertuin en voortuin
Achtertuin
39 m² (7m diep en 5,5m breed)

Voorzieningen in de buurt

Boodschappen0,5 km
Grote supermarkt0,8 km
Cafetaria0,3 km
Restaurant0,4 km
Huisarts0,4 km
Ziekenhuis2,9 km
Kinderdagverblijf0,8 km
BSO0,8 km
Alle voorzieningen in Berflo Es Zuid

Binnenkijken bij Leonardstraat 44 te Hengelo

Meer meldingen in deze omgeving

Binnenkijken bij
Dinsdag 10-2-2026
Wethouder Kampstraat 175, 7553ZK Hengelo (OV)

Nieuw bedrijf
Februari 2026
Hegemansweg 6, 7553WP Hengelo

Binnenkijken bij
Vrijdag 23-1-2026
Berfloweg 217, 7553JP Hengelo (OV)

Binnenkijken bij
Zaterdag 17-1-2026
Wethouder Kampstraat 79, 7553ZD Hengelo (OV)

112 melding
Woensdag 31-12-2025 om 14:57
Alexanderstraat, Hengelo

Binnenkijken bij
Woensdag 24-12-2025
Twekkelerweg 168, 7553LP Hengelo (OV)

Binnenkijken bij
Dinsdag 9-12-2025
Wethouder Kampstraat 69, 7553ZD Hengelo (OV)

Binnenkijken bij
Zaterdag 29-11-2025
Breemarsweg 114, 7553HT Hengelo (OV)

Direct een e-mail ontvangen bij nieuwe meldingen in deze regio?

Meld je dan GRATIS aan voor de Oozo Alert service voor Berflo Es Zuid

Instellen

Meer nieuws in Berflo Es Zuid

Weten hoe eenvoudig het is om af te vallen? Zonder pillen en smeersels en zonder je in het zweet te werken!
Kijk op eenvoudig-afvallen.nl

© 2012 - 2026 OOZO.nl - info@oozo.nl - Gegevens verwijderen? | Disclaimer | Privacy statement