Woning Steijnstraat 64 Hengelo

Steijnstraat 64, 7551GM Hengelo

Ontvang updates voor Binnenstad-Oost

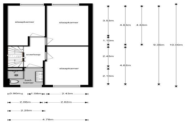
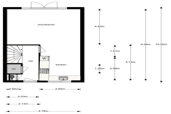
Het adres van deze woning uit 2006 is Steijnstraat 64 te Hengelo. Het pand heeft een oppervlakte van 113m² en een perceeloppervlakte van 101m² en heeft 5 kamers kamers waarvan 3 slaapkamers. De geschatte waarde van deze woning is € 254.000.

Bekijk alle woningen in Binnenstad-Oost

Gegevens van Eengezinswoning, 2-onder-1-kapwoning

Bouwjaar
2006
Geschatte waarde
€ 254.000
Oppervlakte
113 m2
Inhoud
350 m3
Aantal kamers
5 kamers
Slaapkamers
3
Badkamers
1 badkamer en 1 apart toilet
Soort bouw
Bestaande bouw
Eigendomssituatie
Volle eigendom
Ligging
Aan rustige weg, in centrum en in woonwijk
Tuin
Achtertuin en zonneterras
Achtertuin
39 m² (6,5m diep en 6m breed)

Voorzieningen in de buurt

Boodschappen0,2 km
Grote supermarkt0,3 km
Cafetaria0,3 km
Restaurant0,3 km
Huisarts0,5 km
Ziekenhuis2,5 km
Kinderdagverblijf0,2 km
BSO0,4 km
Alle voorzieningen in Binnenstad-Oost

Binnenkijken bij Steijnstraat 64 te Hengelo

Meer meldingen in deze omgeving

112 melding
Zaterdag 1-11-2025 om 12:45
Wolter ten Catestraat, Hengelo

Nieuw bedrijf
Oktober 2025
Drienerstraat 77, 7551HL Hengelo

Nieuw bedrijf
Oktober 2025
Drienerstraat 77, 7551HL Hengelo

Nieuw bedrijf
Oktober 2025
Wolter ten Catestraat 15, 7551HW Hengelo

Binnenkijken bij
Woensdag 29-10-2025
Ziekenhuisstraat 36, 7557AB Hengelo (OV)

Binnenkijken bij
Woensdag 29-10-2025
Ziekenhuisstraat 30, 7557AB Hengelo (OV)

Nieuw bedrijf
Oktober 2025
Wolter ten Catestraat 15, 7551HW Hengelo

Nieuw bedrijf
Oktober 2025
Drienerstraat 77, 7551HL Hengelo

Direct een e-mail ontvangen bij nieuwe meldingen in deze regio?

Meld je dan GRATIS aan voor de Oozo Alert service voor Binnenstad-Oost

Instellen

Meer nieuws in Binnenstad-Oost

Weten hoe eenvoudig het is om af te vallen? Zonder pillen en smeersels en zonder je in het zweet te werken!
Kijk op eenvoudig-afvallen.nl

© 2012 - 2025 OOZO.nl - info@oozo.nl - Gegevens verwijderen? | Disclaimer | Privacy statement