Woning Beckumerschoolweg 69 Hengelo

Beckumerschoolweg 69, 7554PX Hengelo

Ontvang updates voor Beckum kern

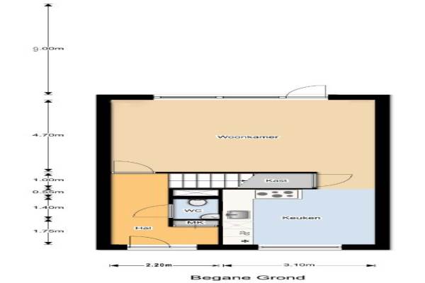
Het adres van deze woning uit 2009 is Beckumerschoolweg 69 te Hengelo. Het pand heeft een oppervlakte van 154m² en een perceeloppervlakte van 141m² en heeft 5 kamers kamers waarvan 3 slaapkamers. De geschatte waarde van deze woning is € 229.500.

Bekijk alle woningen in Beckum kern

Gegevens van Eengezinswoning, tussenwoning

Bouwjaar
2009
Geschatte waarde
€ 229.500
Oppervlakte
154 m2
Inhoud
410 m3
Aantal kamers
5 kamers
Slaapkamers
3
Badkamers
1 badkamer en 1 apart toilet
Soort bouw
Bestaande bouw
Eigendomssituatie
Volle eigendom
Tuin
Achtertuin
Achtertuin
50 m² (9m diep en 5,5m breed)

Voorzieningen in de buurt

Boodschappen0,7 km
Grote supermarkt4,5 km
Cafetaria4,2 km
Restaurant0,6 km
Huisarts4,7 km
Ziekenhuis6,9 km
Kinderdagverblijf0,8 km
BSO0,8 km
Alle voorzieningen in Beckum kern

Binnenkijken bij Beckumerschoolweg 69 te Hengelo

Meer meldingen in deze omgeving

Nieuw bedrijf
April 2026
Meester Verbernestraat 11, 7554MD Hengelo

Nieuw bedrijf
April 2026
Meester Verbernestraat 11, 7554MD Hengelo

Nieuw bedrijf
April 2026
Haaksbergerstraat 67, 7554PA Hengelo

Onroerend goed
Donderdag 26-3-2026
Haaksbergerstraat 123, 7554PA Hengelo (OV)

Faillissement
Dinsdag 17-3-2026
Haaksbergerstraat 71, 7554PA Hengelo

Faillissement
Dinsdag 17-3-2026
Haaksbergerstraat 71, 7554PA Hengelo

Nieuw bedrijf
Maart 2026
Meester van Manenstraat 4, 7554SL Hengelo

Binnenkijken bij
Donderdag 12-3-2026
Beckumerschoolweg 24, 7554PZ Hengelo (OV)

Direct een e-mail ontvangen bij nieuwe meldingen in deze regio?

Meld je dan GRATIS aan voor de Oozo Alert service voor Beckum kern

Instellen

Meer nieuws in Beckum kern

Weten hoe eenvoudig het is om af te vallen? Zonder pillen en smeersels en zonder je in het zweet te werken!
Kijk op eenvoudig-afvallen.nl

© 2012 - 2026 OOZO.nl - info@oozo.nl - Gegevens verwijderen? | Disclaimer | Privacy statement