Woning Jean Louis Pisuissestraat 29 Hengelo

Jean Louis Pisuissestraat 29, 7558LT Hengelo

Ontvang updates voor Molendijkhoek

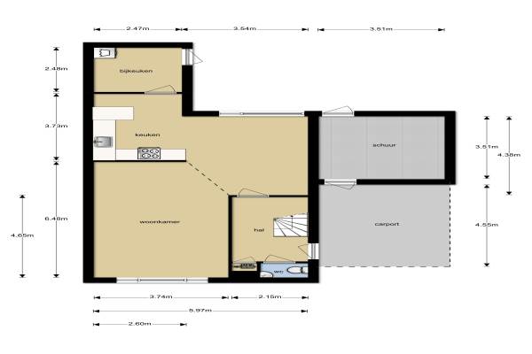
Het adres van deze woning uit 1980 is Jean Louis Pisuissestraat 29 te Hengelo. Het pand heeft 5 kamers kamers waarvan 4 slaapkamers. De geschatte waarde van deze woning is € 275.000.

Bekijk alle woningen in Molendijkhoek

Gegevens van Eengezinswoning, 2-onder-1-kapwoning

Bouwjaar
1980
Geschatte waarde
€ 275.000
Oppervlakte
0 m2
Inhoud
558 m3
Aantal kamers
5 kamers
Slaapkamers
4
Badkamers
1 badkamer
Soort bouw
Bestaande bouw
Eigendomssituatie
Volle eigendom
Ligging
In woonwijk
Tuin
Achtertuin en voortuin
Achtertuin
M² (0,02m diep en 0,02m breed)

Voorzieningen in de buurt

Boodschappen0,8 km
Grote supermarkt0,8 km
Cafetaria1,2 km
Restaurant1,2 km
Huisarts1,2 km
Ziekenhuis6,3 km
Kinderdagverblijf0,4 km
BSO0,5 km
Alle voorzieningen in Molendijkhoek

Binnenkijken bij Jean Louis Pisuissestraat 29 te Hengelo

Meer meldingen in deze omgeving

Binnenkijken bij
Zaterdag 15-11-2025
Noordelijke Esweg 146, 7558MH Hengelo (OV)

Binnenkijken bij
Dinsdag 11-11-2025
Louis Davidsstraat 25, 7558LR Hengelo (OV)

Nieuw bedrijf
Oktober 2025
Noordelijke Esweg 20, 7558MD Hengelo

Binnenkijken bij
Zondag 19-10-2025
Tom Mandersstraat 74, 7558MR Hengelo (OV)

112 melding
Woensdag 15-10-2025 om 15:32
Johan Buziaustraat, Hengelo

Binnenkijken bij
Vrijdag 10-10-2025
Louis Davidsstraat 88, 7558LP Hengelo (OV)

Binnenkijken bij
Zaterdag 27-9-2025
Tom Mandersstraat 14, 7558MP Hengelo (OV)

Binnenkijken bij
Vrijdag 19-9-2025
Johan Buziaustraat 22, 7558LA Hengelo (OV)

Direct een e-mail ontvangen bij nieuwe meldingen in deze regio?

Meld je dan GRATIS aan voor de Oozo Alert service voor Molendijkhoek

Instellen

Meer nieuws in Molendijkhoek

Weten hoe eenvoudig het is om af te vallen? Zonder pillen en smeersels en zonder je in het zweet te werken!
Kijk op eenvoudig-afvallen.nl

© 2012 - 2025 OOZO.nl - info@oozo.nl - Gegevens verwijderen? | Disclaimer | Privacy statement