Woning ir. M. Schefferlaan 37 Hengelo

ir. M. Schefferlaan 37, 7556CP Hengelo

Ontvang updates voor Tichelwerk

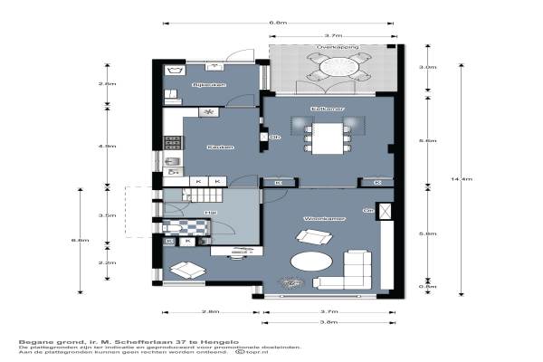
Het adres van deze woning uit 1933 is ir. M. Schefferlaan 37 te Hengelo. Het pand heeft 6 kamers kamers waarvan 5 slaapkamers. De geschatte waarde van deze woning is € 439.500.

Bekijk alle woningen in Tichelwerk

Gegevens van Herenhuis, halfvrijstaande woning

Bouwjaar
1933
Geschatte waarde
€ 439.500
Oppervlakte
0 m2
Inhoud
675 m3
Aantal kamers
6 kamers
Slaapkamers
5
Badkamers
1 badkamer en 1 apart toilet
Soort bouw
Bestaande bouw
Eigendomssituatie
Volle eigendom
Ligging
Aan rustige weg, in centrum en in woonwijk
Tuin
Achtertuin en voortuin
Achtertuin
189 m² (21m diep en 9m breed)

Voorzieningen in de buurt

Boodschappen0,4 km
Grote supermarkt0,6 km
Cafetaria0,3 km
Restaurant0,4 km
Huisarts0,4 km
Ziekenhuis2,5 km
Kinderdagverblijf0,3 km
BSO0,4 km
Alle voorzieningen in Tichelwerk

Binnenkijken bij ir. M. Schefferlaan 37 te Hengelo

Meer meldingen in deze omgeving

Binnenkijken bij
Donderdag 30-10-2025
Wilgenweg 37, 7556HD Hengelo (OV)

Binnenkijken bij
Woensdag 29-10-2025
Berkweg 4, 7556CN Hengelo (OV)

Binnenkijken bij
Woensdag 29-10-2025
Bornsestraat 20A, 7556BG Hengelo (OV)

Binnenkijken bij
Woensdag 29-10-2025
Bornsestraat 20B, 7556BG Hengelo (OV)

Binnenkijken bij
Woensdag 29-10-2025
Bornsestraat 20C, 7556BG Hengelo (OV)

Binnenkijken bij
Woensdag 29-10-2025
Leusveenweg 33, 7556VA Hengelo (OV)

Nieuw bedrijf
Oktober 2025
Beukweg 2I, 7556DE Hengelo

Binnenkijken bij
Zondag 19-10-2025
Is. Sweersstraat 11, 7556VK Hengelo (OV)

Direct een e-mail ontvangen bij nieuwe meldingen in deze regio?

Meld je dan GRATIS aan voor de Oozo Alert service voor Tichelwerk

Instellen

Meer nieuws in Tichelwerk

Weten hoe eenvoudig het is om af te vallen? Zonder pillen en smeersels en zonder je in het zweet te werken!
Kijk op eenvoudig-afvallen.nl

© 2012 - 2025 OOZO.nl - info@oozo.nl - Gegevens verwijderen? | Disclaimer | Privacy statement