Woning Oude Postweg 82 Hengelo

Oude Postweg 82, 7557DG Hengelo

Ontvang updates voor De Noork

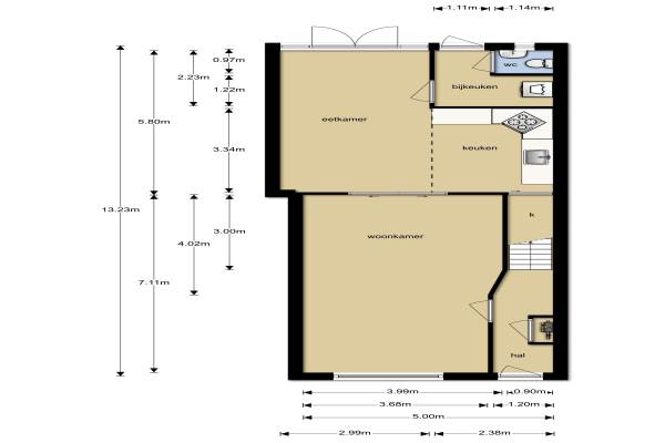
Het adres van deze woning uit 1934 is Oude Postweg 82 te Hengelo. Het pand heeft een oppervlakte van 118m² en een perceeloppervlakte van 208m² en heeft 6 kamers kamers waarvan 3 slaapkamers. De geschatte waarde van deze woning is € 239.500.

Bekijk alle woningen in De Noork

Gegevens van Eengezinswoning, 2-onder-1-kapwoning

Bouwjaar
1934
Geschatte waarde
€ 239.500
Oppervlakte
118 m2
Inhoud
468 m3
Aantal kamers
6 kamers
Slaapkamers
3
Badkamers
1 badkamer en 1 apart toilet
Soort bouw
Bestaande bouw
Eigendomssituatie
Volle eigendom
Ligging
Aan rustige weg en in woonwijk
Tuin
Achtertuin en voortuin
Achtertuin
98 m² (15m diep en 6,5m breed)

Voorzieningen in de buurt

Boodschappen0,2 km
Grote supermarkt0,3 km
Cafetaria0,2 km
Restaurant0,4 km
Huisarts0,5 km
Ziekenhuis3,5 km
Kinderdagverblijf0,4 km
BSO0,5 km
Alle voorzieningen in De Noork

Binnenkijken bij Oude Postweg 82 te Hengelo

Meer meldingen in deze omgeving

Binnenkijken bij
Zondag 10-5-2026
Josef Haydnlaan 56I, 7557CT Hengelo (OV)

112 melding
Maandag 4-5-2026 om 14:41
Rossinistraat, Hengelo

Onroerend goed
Vrijdag 1-5-2026
Chopinstraat 10- 11, 7557EH Hengelo (OV)

112 melding
Woensdag 29-4-2026 om 16:48
Paganinistraat, Hengelo

112 melding
Woensdag 29-4-2026 om 16:48
Paganinistraat, Hengelo

Binnenkijken bij
Donderdag 16-4-2026
Kwartelstraat 22, 7557GW Hengelo (OV)

Binnenkijken bij
Zondag 29-3-2026
Josef Haydnlaan 46, 7557CT Hengelo (OV)

Nieuw bedrijf
Maart 2026
Mendelssohnstraat 15, 7557BH Hengelo

Direct een e-mail ontvangen bij nieuwe meldingen in deze regio?

Meld je dan GRATIS aan voor de Oozo Alert service voor De Noork

Instellen

Meer nieuws in De Noork

Weten hoe eenvoudig het is om af te vallen? Zonder pillen en smeersels en zonder je in het zweet te werken!
Kijk op eenvoudig-afvallen.nl

© 2012 - 2026 OOZO.nl - info@oozo.nl - Gegevens verwijderen? | Disclaimer | Privacy statement