Woning Meeuwenweg 9 Hengelo

Meeuwenweg 9, 7557BE Hengelo

Ontvang updates voor Elsbeek

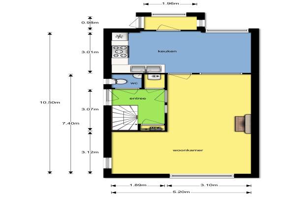
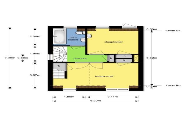
Het adres van deze woning uit 1968 is Meeuwenweg 9 te Hengelo. Het pand heeft een oppervlakte van 116m² en een perceeloppervlakte van 238m² en heeft 4 kamers kamers waarvan 3 slaapkamers. De geschatte waarde van deze woning is € 198.500.

Bekijk alle woningen in Elsbeek

Gegevens van Eengezinswoning, vrijstaande woning

Bouwjaar
1968
Geschatte waarde
€ 198.500
Oppervlakte
116 m2
Inhoud
435 m3
Aantal kamers
4 kamers
Slaapkamers
3
Badkamers
1 badkamer en 1 apart toilet
Soort bouw
Bestaande bouw
Ligging
Aan rustige weg, in centrum en in woonwijk

Voorzieningen in de buurt

Boodschappen0,4 km
Grote supermarkt0,4 km
Cafetaria0,2 km
Restaurant0,5 km
Huisarts0,4 km
Ziekenhuis2,9 km
Kinderdagverblijf0,3 km
BSO0,3 km
Alle voorzieningen in Elsbeek

Binnenkijken bij Meeuwenweg 9 te Hengelo

Meer meldingen in deze omgeving

Binnenkijken bij
Vrijdag 21-11-2025
Bergweg 16, 7557BT Hengelo (OV)

Binnenkijken bij
Dinsdag 11-11-2025
Reigerweg 17, 7557PT Hengelo (OV)

Binnenkijken bij
Dinsdag 11-11-2025
Oude Molenweg 18, 7551HC Hengelo (OV)

Nieuw bedrijf
Oktober 2025
Ooievaarsweg 7, 7557BA Hengelo

Binnenkijken bij
Dinsdag 30-9-2025
Spreeuwenstraat 30, 7557AL Hengelo (OV)

Binnenkijken bij
Zaterdag 27-9-2025
Lepelaarstraat 1A, 7557PR Hengelo (OV)

Binnenkijken bij
Donderdag 25-9-2025
Wielewaalstraat 6, 7557PD Hengelo (OV)

Binnenkijken bij
Vrijdag 19-9-2025
Reigerweg 50A, 7557PX Hengelo (OV)

Direct een e-mail ontvangen bij nieuwe meldingen in deze regio?

Meld je dan GRATIS aan voor de Oozo Alert service voor Elsbeek

Instellen

Meer nieuws in Elsbeek

Weten hoe eenvoudig het is om af te vallen? Zonder pillen en smeersels en zonder je in het zweet te werken!
Kijk op eenvoudig-afvallen.nl

© 2012 - 2025 OOZO.nl - info@oozo.nl - Gegevens verwijderen? | Disclaimer | Privacy statement