Woning Honingbij 13 Hengelo

Honingbij 13, 7559DT Hengelo

Ontvang updates voor Het Broek

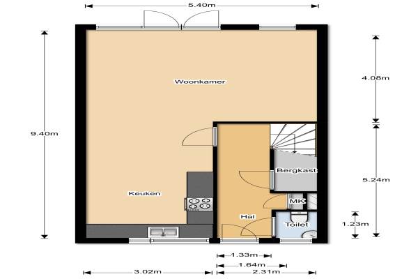
Het adres van deze woning uit 2006 is Honingbij 13 te Hengelo. Het pand heeft een oppervlakte van 123m² en een perceeloppervlakte van 176m² en heeft 5 kamers kamers waarvan 3 slaapkamers. De geschatte waarde van deze woning is € 245.000.

Bekijk alle woningen in Het Broek

Gegevens van Eengezinswoning, hoekwoning

Bouwjaar
2006
Geschatte waarde
€ 245.000
Oppervlakte
123 m2
Inhoud
446 m3
Aantal kamers
5 kamers
Slaapkamers
3
Badkamers
1 badkamer en 1 apart toilet
Soort bouw
Bestaande bouw
Eigendomssituatie
Volle eigendom
Ligging
Aan rustige weg en in woonwijk
Tuin
Achtertuin en voortuin
Achtertuin
54 m² (9m diep en 6m breed)

Voorzieningen in de buurt

Boodschappen0,9 km
Grote supermarkt0,9 km
Cafetaria1,0 km
Restaurant1,2 km
Huisarts1,0 km
Ziekenhuis6,4 km
Kinderdagverblijf0,7 km
BSO0,7 km
Alle voorzieningen in Het Broek

Binnenkijken bij Honingbij 13 te Hengelo

Meer meldingen in deze omgeving

Binnenkijken bij
Woensdag 29-10-2025
Reimersdennenweg 17, 7559PL Hengelo (OV)

Binnenkijken bij
Woensdag 29-10-2025
Zeeltstraat 2, 7559HL Hengelo (OV)

Nieuw bedrijf
Oktober 2025
Meester Molendijkweg 40, 7559DW Hengelo

Binnenkijken bij
Zondag 19-10-2025
Kolbleistraat 16, 7559MC Hengelo (OV)

Nieuw bedrijf
Oktober 2025
Sprinkhaan 6, 7559EK Hengelo

Nieuw bedrijf
Oktober 2025
Kruisspin 6, 7559EM Hengelo

Binnenkijken bij
Dinsdag 14-10-2025
Namenstraat 38, 7559NX Hengelo (OV)

Binnenkijken bij
Donderdag 9-10-2025
Kruisspin 46, 7559EM Hengelo (OV)

Direct een e-mail ontvangen bij nieuwe meldingen in deze regio?

Meld je dan GRATIS aan voor de Oozo Alert service voor Het Broek

Instellen

Meer nieuws in Het Broek

Weten hoe eenvoudig het is om af te vallen? Zonder pillen en smeersels en zonder je in het zweet te werken!
Kijk op eenvoudig-afvallen.nl

© 2012 - 2025 OOZO.nl - info@oozo.nl - Gegevens verwijderen? | Disclaimer | Privacy statement