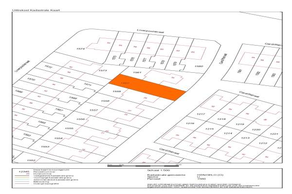
Woning Cardiffstraat 31 Hengelo

Cardiffstraat 31, 7559KC Hengelo

Ontvang updates voor Vossenbelt-Noord

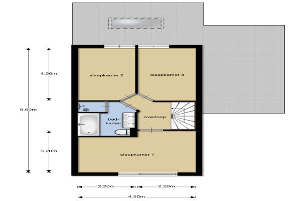
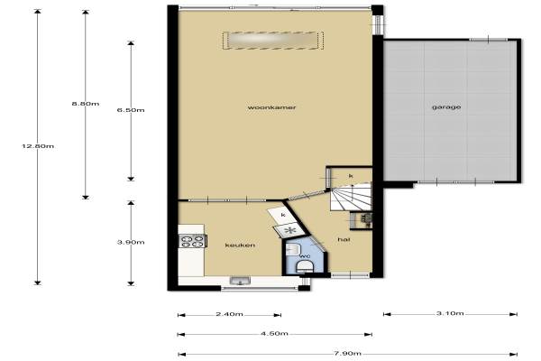
Het adres van deze woning uit 1997 is Cardiffstraat 31 te Hengelo. Het pand heeft een oppervlakte van 130m² en een perceeloppervlakte van 219m² en heeft 6 kamers kamers waarvan 5 slaapkamers. De geschatte waarde van deze woning is € 250.000.

Bekijk alle woningen in Vossenbelt-Noord

Gegevens van Eengezinswoning, 2-onder-1-kapwoning

Bouwjaar
1997
Geschatte waarde
€ 250.000
Oppervlakte
130 m2
Inhoud
472 m3
Aantal kamers
6 kamers
Slaapkamers
5
Badkamers
1 apart toilet
Soort bouw
Bestaande bouw
Eigendomssituatie
Volle eigendom
Ligging
Aan rustige weg en in woonwijk
Tuin
Achtertuin en voortuin
Achtertuin
60 m² (7,5m diep en 8m breed)

Voorzieningen in de buurt

Boodschappen0,6 km
Grote supermarkt0,6 km
Cafetaria0,7 km
Restaurant1,7 km
Huisarts0,7 km
Ziekenhuis5,6 km
Kinderdagverblijf0,5 km
BSO0,5 km
Alle voorzieningen in Vossenbelt-Noord

Binnenkijken bij Cardiffstraat 31 te Hengelo

Meer meldingen in deze omgeving

112 melding
Zondag 12-10-2025 om 23:30
Londenstraat, Hengelo

112 melding
Zondag 5-10-2025 om 19:32
Bordeauxstraat, 7559KK Hengelo

Binnenkijken bij
Zondag 28-9-2025
Veluwestraat 96, 7559LH Hengelo (OV)

Binnenkijken bij
Zaterdag 27-9-2025
Veluwestraat 68, 7559LH Hengelo (OV)

Binnenkijken bij
Donderdag 25-9-2025
Liverpoolstraat 46, 7559KA Hengelo (OV)

Binnenkijken bij
Woensdag 24-9-2025
Straatsburg 350, 7559NM Hengelo (OV)

Binnenkijken bij
Vrijdag 19-9-2025
Veluwestraat 26, 7559LG Hengelo (OV)

Binnenkijken bij
Vrijdag 19-9-2025
Cardiffstraat 32, 7559KB Hengelo (OV)

Direct een e-mail ontvangen bij nieuwe meldingen in deze regio?

Meld je dan GRATIS aan voor de Oozo Alert service voor Vossenbelt-Noord

Instellen

Meer nieuws in Vossenbelt-Noord

Weten hoe eenvoudig het is om af te vallen? Zonder pillen en smeersels en zonder je in het zweet te werken!
Kijk op eenvoudig-afvallen.nl

© 2012 - 2025 OOZO.nl - info@oozo.nl - Gegevens verwijderen? | Disclaimer | Privacy statement