Woning Breemarsweg 225 Hengelo

Breemarsweg 225, 7553HJ Hengelo

Ontvang updates voor Tuindorp-Zuid

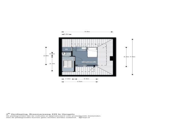
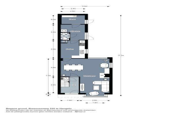
Het adres van deze woning uit 1934 is Breemarsweg 225 te Hengelo. Het pand heeft een oppervlakte van 117m² en een perceeloppervlakte van 220m² en heeft 4 kamers kamers waarvan 3 slaapkamers. De geschatte waarde van deze woning is € 185.000.

Bekijk alle woningen in Tuindorp-Zuid

Gegevens van Eengezinswoning, 2-onder-1-kapwoning

Bouwjaar
1934
Geschatte waarde
€ 185.000
Oppervlakte
117 m2
Inhoud
442 m3
Aantal kamers
4 kamers
Slaapkamers
3
Badkamers
1 badkamer en 1 apart toilet
Soort bouw
Bestaande bouw
Eigendomssituatie
Volle eigendom
Ligging
In woonwijk
Tuin
Achtertuin
Achtertuin
113 m² (15m diep en 7,5m breed)

Voorzieningen in de buurt

Boodschappen0,4 km
Grote supermarkt0,5 km
Cafetaria0,3 km
Restaurant0,5 km
Huisarts1,4 km
Ziekenhuis1,9 km
Kinderdagverblijf0,5 km
BSO0,3 km
Alle voorzieningen in Tuindorp-Zuid

Binnenkijken bij Breemarsweg 225 te Hengelo

Meer meldingen in deze omgeving

Binnenkijken bij
Zaterdag 14-2-2026
Steenbakkersweg 91, 7553EH Hengelo (OV)

Binnenkijken bij
Zaterdag 14-2-2026
Verenigingsstraat 9, 7553TR Hengelo (OV)

Binnenkijken bij
Donderdag 12-2-2026
Zonstraat 20, 7553DX Hengelo (OV)

Binnenkijken bij
Zaterdag 7-2-2026
Steenbakkersweg 49, 7553EH Hengelo (OV)

112 melding
Vrijdag 6-2-2026 om 23:21
Groenhofstraat, Hengelo

112 melding
Vrijdag 6-2-2026 om 23:21
Groenhofstraat, Hengelo

Nieuw bedrijf
Februari 2026
Binnenbeekstraat 18, 7553GA Hengelo

112 melding
Woensdag 4-2-2026 om 11:46
Dikkersplein, 7553CZ Hengelo

Direct een e-mail ontvangen bij nieuwe meldingen in deze regio?

Meld je dan GRATIS aan voor de Oozo Alert service voor Tuindorp-Zuid

Instellen

Meer nieuws in Tuindorp-Zuid

Weten hoe eenvoudig het is om af te vallen? Zonder pillen en smeersels en zonder je in het zweet te werken!
Kijk op eenvoudig-afvallen.nl

© 2012 - 2026 OOZO.nl - info@oozo.nl - Gegevens verwijderen? | Disclaimer | Privacy statement