Woning Primulastraat 11 Drunen

Primulastraat 11, 5151TR Drunen

Ontvang updates voor Braken-Oost

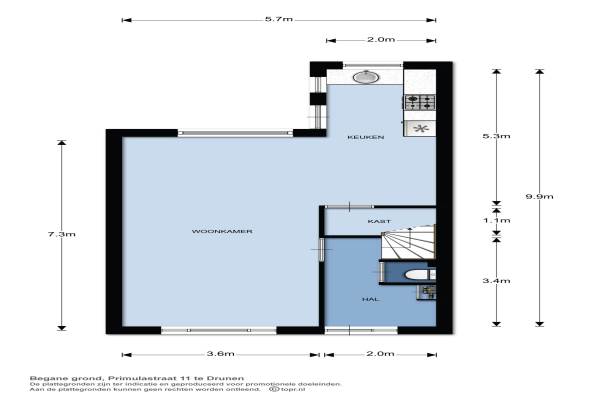
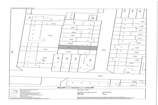
Het adres van deze woning uit 1964 is Primulastraat 11 te Drunen. Het pand heeft een oppervlakte van 110m² en een perceeloppervlakte van 161m² en heeft 4 kamers kamers waarvan 3 slaapkamers. De geschatte waarde van deze woning is € 179.000.

Bekijk alle woningen in Braken-Oost

Gegevens van Eengezinswoning, tussenwoning

Bouwjaar
1964
Geschatte waarde
€ 179.000
Oppervlakte
110 m2
Inhoud
350 m3
Aantal kamers
4 kamers
Slaapkamers
3
Badkamers
1 badkamer en 1 apart toilet
Soort bouw
Bestaande bouw
Eigendomssituatie
Volle eigendom
Ligging
In woonwijk
Tuin
Achtertuin
Achtertuin
74 m² (13,5m diep en 5,5m breed)

Voorzieningen in de buurt

Boodschappen0,7 km
Grote supermarkt0,7 km
Cafetaria0,7 km
Restaurant0,7 km
Huisarts0,6 km
Ziekenhuis0,8 km
Kinderdagverblijf0,5 km
BSO0,7 km
Alle voorzieningen in Braken-Oost

Binnenkijken bij Primulastraat 11 te Drunen

Meer meldingen in deze omgeving

Binnenkijken bij
Vrijdag 8-5-2026
Oranjestraat 19, 5151GP Drunen

Binnenkijken bij
Dinsdag 5-5-2026
Prins Bernhardstraat 43, 5151VA Drunen

Binnenkijken bij
Dinsdag 5-5-2026
Burgemeester Steinbachstraat 25, 5151BV Drunen

112 melding
Maandag 20-4-2026 om 18:25
Spoorlaan, Drunen

112 melding
Donderdag 16-4-2026 om 09:47
Tinie de Munnikstraat, 5151VW Drunen

112 melding
Donderdag 16-4-2026 om 09:39
Tinie de Munnikstraat, 5151VW Drunen

112 melding
Donderdag 16-4-2026 om 09:39
Tinie de Munnikstraat, 5151VW Drunen

112 melding
Donderdag 16-4-2026 om 09:38
Tinie de Munnikstraat, 5151VW Drunen

Direct een e-mail ontvangen bij nieuwe meldingen in deze regio?

Meld je dan GRATIS aan voor de Oozo Alert service voor Braken-Oost

Instellen

Meer nieuws in Braken-Oost

Weten hoe eenvoudig het is om af te vallen? Zonder pillen en smeersels en zonder je in het zweet te werken!
Kijk op eenvoudig-afvallen.nl

© 2012 - 2026 OOZO.nl - info@oozo.nl - Gegevens verwijderen? | Disclaimer | Privacy statement