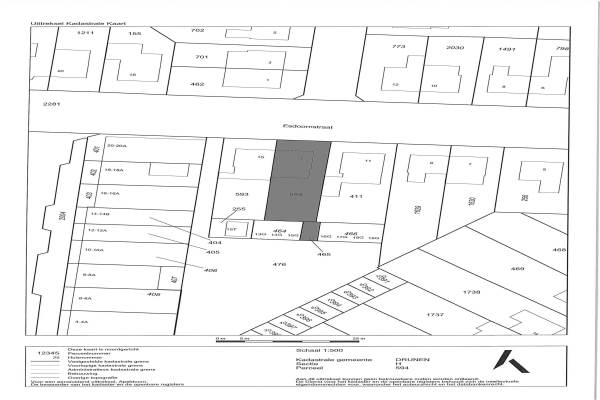
Woning Esdoornstraat 13 Drunen

Esdoornstraat 13, 5151XC Drunen

Ontvang updates voor Braken-West

Het adres van deze woning uit 1960 is Esdoornstraat 13 te Drunen. Het pand heeft een oppervlakte van 118m² en een perceeloppervlakte van 300m² en heeft 5 kamers kamers waarvan 4 slaapkamers. De geschatte waarde van deze woning is € 235.000.

Bekijk alle woningen in Braken-West

Gegevens van Eengezinswoning, hoekwoning

Bouwjaar
1960
Geschatte waarde
€ 235.000
Oppervlakte
118 m2
Inhoud
363 m3
Aantal kamers
5 kamers
Slaapkamers
4
Badkamers
1 badkamer en 1 apart toilet
Soort bouw
Bestaande bouw
Eigendomssituatie
Volle eigendom
Ligging
In woonwijk
Tuin
Achtertuin en voortuin
Achtertuin
105 m² (15m diep en 7m breed)

Voorzieningen in de buurt

Boodschappen0,8 km
Grote supermarkt0,5 km
Cafetaria0,3 km
Restaurant0,7 km
Huisarts0,7 km
Ziekenhuis1,4 km
Kinderdagverblijf0,4 km
BSO0,5 km
Alle voorzieningen in Braken-West

Binnenkijken bij Esdoornstraat 13 te Drunen

Meer meldingen in deze omgeving

Nieuw bedrijf
Oktober 2025
Plataanplein 5, 5151AV Drunen

Binnenkijken bij
Zaterdag 11-10-2025
Schoolstraat 34B, 5151HH Drunen

Nieuw bedrijf
Oktober 2025
Lindestraat 14, 5151AN Drunen

Binnenkijken bij
Donderdag 2-10-2025
Berkenstraat 4, 5151XK Drunen

112 melding
Woensdag 24-9-2025 om 08:50
Burgemeester van de Heijdenstraat, Drunen

Binnenkijken bij
Vrijdag 19-9-2025
Burgemeester van de Heijdenstraat 69, 5151HL Drunen

Binnenkijken bij
Vrijdag 19-9-2025
Kastanjelaan-West 181, 5151ZW Drunen

Binnenkijken bij
Vrijdag 19-9-2025
Esdoornstraat 8, 5151XC Drunen

Direct een e-mail ontvangen bij nieuwe meldingen in deze regio?

Meld je dan GRATIS aan voor de Oozo Alert service voor Braken-West

Instellen

Meer nieuws in Braken-West

Weten hoe eenvoudig het is om af te vallen? Zonder pillen en smeersels en zonder je in het zweet te werken!
Kijk op eenvoudig-afvallen.nl

© 2012 - 2025 OOZO.nl - info@oozo.nl - Gegevens verwijderen? | Disclaimer | Privacy statement