Woning Hugo de Grootstraat 56 Drunen

Hugo de Grootstraat 56, 5151EJ Drunen

Ontvang updates voor Centrum Drunen

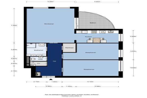
Het adres van deze woning uit 1998 is Hugo de Grootstraat 56 te Drunen. Het pand heeft een oppervlakte van 120m² en heeft 3 kamers kamers waarvan 2 slaapkamers. De geschatte waarde van deze woning is € 309.000.

Bekijk alle woningen in Centrum Drunen

Gegevens van Bovenwoning (appartement)

Bouwjaar
1998
Geschatte waarde
€ 309.000
Oppervlakte
120 m2
Inhoud
372 m3
Aantal kamers
3 kamers
Slaapkamers
2
Badkamers
1 badkamer en 1 apart toilet
Soort bouw
Bestaande bouw
Eigendomssituatie
Volle eigendom
Ligging
In woonwijk

Voorzieningen in de buurt

Boodschappen0,2 km
Grote supermarkt0,3 km
Cafetaria0,2 km
Restaurant0,2 km
Huisarts0,3 km
Ziekenhuis1,3 km
Kinderdagverblijf0,6 km
BSO0,6 km
Alle voorzieningen in Centrum Drunen

Binnenkijken bij Hugo de Grootstraat 56 te Drunen

Meer meldingen in deze omgeving

Nieuw bedrijf
November 2025
Hugo de Grootstraat 26, 5151EH Drunen

Nieuw bedrijf
November 2025
Grotestraat 145, 5151BK Drunen

112 melding
Woensdag 5-11-2025 om 02:38
Hugo de Grootstraat, Drunen

Nieuw bedrijf
Oktober 2025
Grotestraat 134, 5151BN Drunen

Binnenkijken bij
Vrijdag 19-9-2025
Hugo de Grootstraat 102, 5151EJ Drunen

Binnenkijken bij
Vrijdag 19-9-2025
Hugo de Grootstraat 35C, 5151EG Drunen

Nieuw bedrijf
September 2025
Hugo de Grootstraat 45, 5151EG Drunen

112 melding
Maandag 8-9-2025 om 09:34
Torenstraat, 5151JL Drunen

Direct een e-mail ontvangen bij nieuwe meldingen in deze regio?

Meld je dan GRATIS aan voor de Oozo Alert service voor Centrum Drunen

Instellen

Meer nieuws in Centrum Drunen

Weten hoe eenvoudig het is om af te vallen? Zonder pillen en smeersels en zonder je in het zweet te werken!
Kijk op eenvoudig-afvallen.nl

© 2012 - 2025 OOZO.nl - info@oozo.nl - Gegevens verwijderen? | Disclaimer | Privacy statement