Woning Bontekoestraat 24 Drunen

Bontekoestraat 24, 5151MN Drunen

Ontvang updates voor Venne-Oost

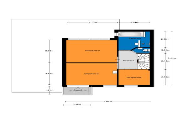
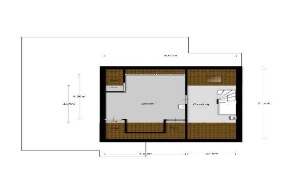
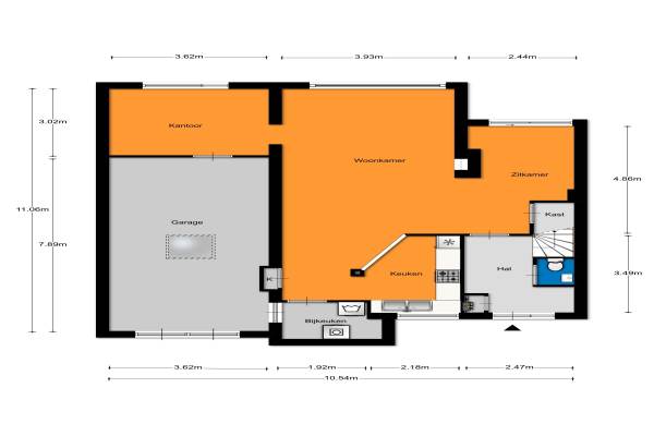
Het adres van deze woning uit 1972 is Bontekoestraat 24 te Drunen. Het pand heeft een oppervlakte van 155m² en een perceeloppervlakte van 359m² en heeft 5 kamers kamers waarvan 4 slaapkamers. De geschatte waarde van deze woning is € 295.000.

Bekijk alle woningen in Venne-Oost

Gegevens van Eengezinswoning, hoekwoning

Bouwjaar
1972
Geschatte waarde
€ 295.000
Oppervlakte
155 m2
Inhoud
583 m3
Aantal kamers
5 kamers
Slaapkamers
4
Badkamers
1 badkamer en 2 aparte toiletten
Soort bouw
Bestaande bouw
Eigendomssituatie
Volle eigendom
Ligging
In woonwijk
Tuin
Achtertuin en voortuin
Achtertuin
143 m² (13m diep en 11m breed)

Voorzieningen in de buurt

Boodschappen0,7 km
Grote supermarkt0,8 km
Cafetaria0,9 km
Restaurant0,7 km
Huisarts1,1 km
Ziekenhuis1,5 km
Kinderdagverblijf0,6 km
BSO0,5 km
Alle voorzieningen in Venne-Oost

Binnenkijken bij Bontekoestraat 24 te Drunen

Meer meldingen in deze omgeving

Nieuw bedrijf
November 2025
Klinkert 1, 5151RD Drunen

Nieuw bedrijf
November 2025
Van Oldenbarneveltstraat 3, 5151CE Drunen

Nieuw bedrijf
November 2025
Van Oldenbarneveltstraat 3, 5151CE Drunen

Nieuw bedrijf
November 2025
Vermeerplantsoen 69, 5151WP Drunen

112 melding
Woensdag 19-11-2025 om 20:49
Torenstraat, 5151JN Drunen

112 melding
Vrijdag 14-11-2025 om 11:26
Giersbergen, 5151RG Drunen

112 melding
Vrijdag 14-11-2025 om 11:23
Giersbergen, 5151RG Drunen

Nieuw bedrijf
November 2025
Giersbergen 15, 5151RG Drunen

Direct een e-mail ontvangen bij nieuwe meldingen in deze regio?

Meld je dan GRATIS aan voor de Oozo Alert service voor Venne-Oost

Instellen

Meer nieuws in Venne-Oost

Weten hoe eenvoudig het is om af te vallen? Zonder pillen en smeersels en zonder je in het zweet te werken!
Kijk op eenvoudig-afvallen.nl

© 2012 - 2025 OOZO.nl - info@oozo.nl - Gegevens verwijderen? | Disclaimer | Privacy statement