Woning Laan van Australië 27 5152 Drunen

Laan van Australië 27 5152, 5152GL Drunen

Ontvang updates voor Venne-West

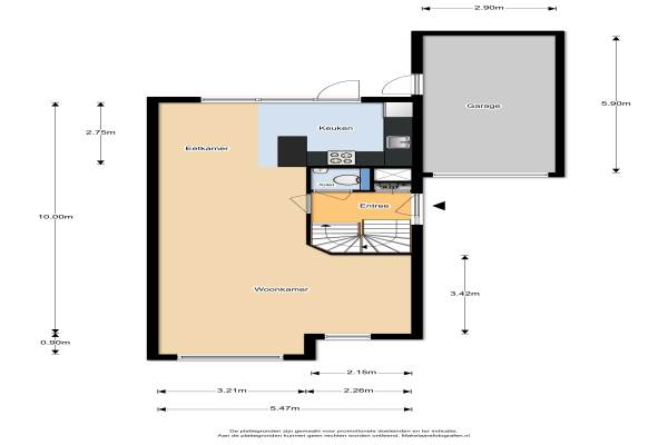
Het adres van deze woning uit 2008 is Laan van Australië 27 5152 te Drunen. Het pand heeft een oppervlakte van 144m² en een perceeloppervlakte van 225m² en heeft 6 kamers kamers waarvan 4 slaapkamers. De geschatte waarde van deze woning is € 389.000.

Bekijk alle woningen in Venne-West

Gegevens van Eengezinswoning, 2-onder-1-kapwoning

Bouwjaar
2008
Geschatte waarde
€ 389.000
Oppervlakte
144 m2
Inhoud
590 m3
Aantal kamers
6 kamers
Slaapkamers
4
Soort bouw
Bestaande bouw
Eigendomssituatie
Volle eigendom
Ligging
Aan rustige weg, in woonwijk, beschutte ligging en in bosrijke omgeving
Tuin
Achtertuin en voortuin
Achtertuin
48 m² (8,34m diep en 5,74m breed)

Voorzieningen in de buurt

Boodschappen0,8 km
Grote supermarkt0,8 km
Cafetaria0,9 km
Restaurant1,1 km
Huisarts1,2 km
Ziekenhuis2,3 km
Kinderdagverblijf0,6 km
BSO0,5 km
Alle voorzieningen in Venne-West

Binnenkijken bij Laan van Australië 27 5152 te Drunen

Meer meldingen in deze omgeving

Nieuw bedrijf
November 2025
De Ganges 6, 5152VG Drunen

Binnenkijken bij
Vrijdag 21-11-2025
Afrikalaan 68, 5152MD Drunen

Binnenkijken bij
Vrijdag 21-11-2025
Donauring 202, 5152TL Drunen

Nieuw bedrijf
November 2025
Amerikalaan 22, 5152LR Drunen

112 melding
Zondag 16-11-2025 om 16:03
Overlaatweg, 5151AD Drunen

Nieuw bedrijf
November 2025
Finlandplantsoen 131, 5152PL Drunen

Binnenkijken bij
Dinsdag 11-11-2025
Kleinestraat 41, 5151AC Drunen

Binnenkijken bij
Dinsdag 11-11-2025
Europalaan 27, 5152NE Drunen

Direct een e-mail ontvangen bij nieuwe meldingen in deze regio?

Meld je dan GRATIS aan voor de Oozo Alert service voor Venne-West

Instellen

Meer nieuws in Venne-West

Weten hoe eenvoudig het is om af te vallen? Zonder pillen en smeersels en zonder je in het zweet te werken!
Kijk op eenvoudig-afvallen.nl

© 2012 - 2025 OOZO.nl - info@oozo.nl - Gegevens verwijderen? | Disclaimer | Privacy statement