Woning Frederik van Eedenlaan 11 Hillegom

Frederik van Eedenlaan 11, 2182VJ Hillegom

Ontvang updates voor Wendes

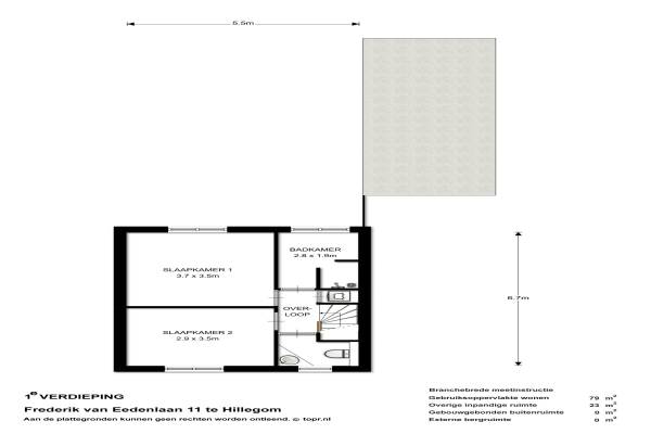
Het adres van deze woning uit 1962 is Frederik van Eedenlaan 11 te Hillegom. Het pand heeft een oppervlakte van 79m² en een perceeloppervlakte van 209m² en heeft 4 kamers kamers waarvan 3 slaapkamers. De geschatte waarde van deze woning is € 250.000.

Bekijk alle woningen in Wendes

Gegevens van Eengezinswoning, hoekwoning

Bouwjaar
1962
Geschatte waarde
€ 250.000
Oppervlakte
79 m2
Inhoud
290 m3
Aantal kamers
4 kamers
Slaapkamers
3
Badkamers
1 badkamer en 2 aparte toiletten
Soort bouw
Bestaande bouw
Eigendomssituatie
Volle eigendom
Ligging
Aan rustige weg, in woonwijk en beschutte ligging
Tuin
Achtertuin en voortuin
Achtertuin
69 m² (11,5m diep en 6m breed)

Voorzieningen in de buurt

Boodschappen0,8 km
Grote supermarkt0,9 km
Cafetaria0,9 km
Restaurant1,3 km
Huisarts0,9 km
Ziekenhuis0,8 km
Kinderdagverblijf0,5 km
BSO0,5 km
Alle voorzieningen in Wendes

Binnenkijken bij Frederik van Eedenlaan 11 te Hillegom

Meer meldingen in deze omgeving

112 melding
Zondag 5-10-2025 om 12:14
Vondelwende, 2182VV Hillegom

112 melding
Zondag 5-10-2025 om 12:14
Vondelwende, 2182VV Hillegom

112 melding
Vrijdag 3-10-2025 om 14:06
Lodewijk van Deyssellaan, 2182VN Hillegom

112 melding
Vrijdag 3-10-2025 om 14:06
Lodewijk van Deyssellaan, 2182VN Hillegom

112 melding
Vrijdag 3-10-2025 om 10:48
Lodewijk van Deyssellaan, 2182VN Hillegom

112 melding
Donderdag 2-10-2025 om 11:20
Willem Klooslaan, 2182VL Hillegom

112 melding
Donderdag 2-10-2025 om 10:04
Willem Klooslaan, 2182VL Hillegom

112 melding
Woensdag 1-10-2025 om 16:05
Willem Klooslaan, 2182VL Hillegom

Direct een e-mail ontvangen bij nieuwe meldingen in deze regio?

Meld je dan GRATIS aan voor de Oozo Alert service voor Wendes

Instellen

Meer nieuws in Wendes

Weten hoe eenvoudig het is om af te vallen? Zonder pillen en smeersels en zonder je in het zweet te werken!
Kijk op eenvoudig-afvallen.nl

© 2012 - 2025 OOZO.nl - info@oozo.nl - Gegevens verwijderen? | Disclaimer | Privacy statement