Woning Assumburgh 45 Hillegom

Assumburgh 45, 2181MA Hillegom

Ontvang updates voor Treslong

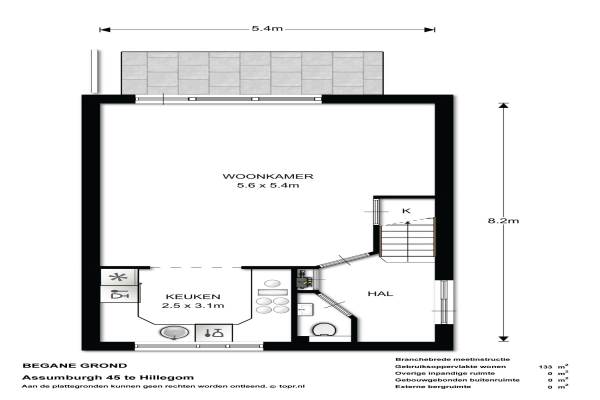
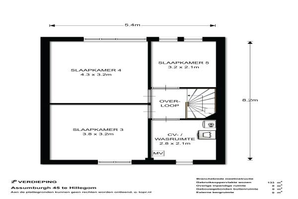
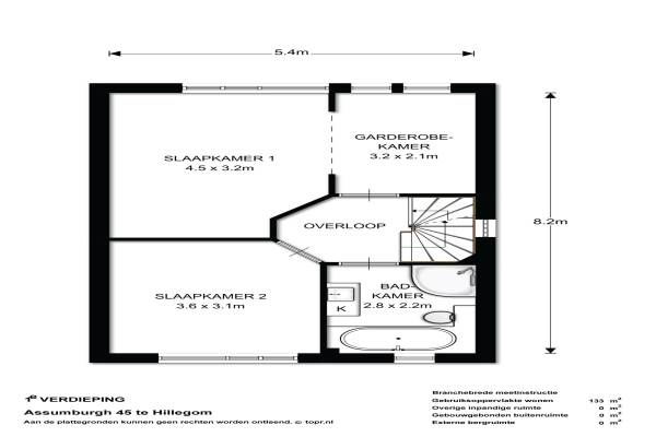
Het adres van deze woning uit 1994 is Assumburgh 45 te Hillegom. Het pand heeft een oppervlakte van 133m² en een perceeloppervlakte van 181m² en heeft 7 kamers kamers waarvan 6 slaapkamers. De geschatte waarde van deze woning is € 349.000.

Bekijk alle woningen in Treslong

Gegevens van Eengezinswoning, hoekwoning

Bouwjaar
1994
Geschatte waarde
€ 349.000
Oppervlakte
133 m2
Inhoud
415 m3
Aantal kamers
7 kamers
Slaapkamers
6
Badkamers
1 badkamer en 1 apart toilet
Soort bouw
Bestaande bouw
Eigendomssituatie
Volle eigendom
Ligging
Aan rustige weg, in woonwijk en beschutte ligging
Tuin
Achtertuin, voortuin en zijtuin
Achtertuin
98 m² (13m diep en 7,5m breed)

Voorzieningen in de buurt

Boodschappen0,7 km
Grote supermarkt1,0 km
Cafetaria0,7 km
Restaurant0,7 km
Huisarts0,8 km
Ziekenhuis2,4 km
Kinderdagverblijf0,6 km
BSO0,6 km
Alle voorzieningen in Treslong

Binnenkijken bij Assumburgh 45 te Hillegom

Meer meldingen in deze omgeving

112 melding
Vrijdag 26-12-2025 om 19:55
Maartensheem, Hillegom

112 melding
Vrijdag 26-12-2025 om 13:01
Treslongstaete, 2181DT Hillegom

112 melding
Vrijdag 26-12-2025 om 12:30
Waardenburg, 2181LR Hillegom

112 melding
Donderdag 25-12-2025 om 15:34
Molenlaan, 2181GE Hillegom

112 melding
Woensdag 24-12-2025 om 13:56
Weeresteinstraat, 2181GA Hillegom

112 melding
Dinsdag 23-12-2025 om 11:48
Weeresteinstraat, 2181GA Hillegom

112 melding
Dinsdag 23-12-2025 om 08:43
Maartensheem, 2181DL Hillegom

112 melding
Maandag 22-12-2025 om 15:51
Waardenburg, 2181LR Hillegom

Direct een e-mail ontvangen bij nieuwe meldingen in deze regio?

Meld je dan GRATIS aan voor de Oozo Alert service voor Treslong

Instellen

Meer nieuws in Treslong

Weten hoe eenvoudig het is om af te vallen? Zonder pillen en smeersels en zonder je in het zweet te werken!
Kijk op eenvoudig-afvallen.nl

© 2012 - 2025 OOZO.nl - info@oozo.nl - Gegevens verwijderen? | Disclaimer | Privacy statement