Woning Wisseloordlaan 31 Hilversum

Wisseloordlaan 31, 1217DJ Hilversum

Ontvang updates voor Villaparken

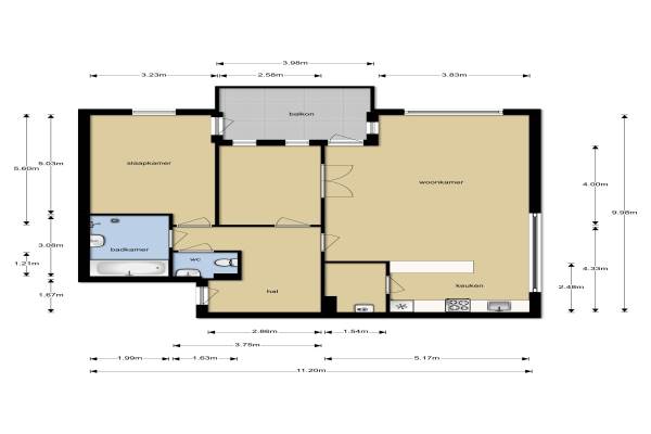
Het adres van deze woning uit 2004 is Wisseloordlaan 31 te Hilversum. Het pand heeft een oppervlakte van 100m² en heeft 3 kamers kamers waarvan 2 slaapkamers. De geschatte waarde van deze woning is € 489.000.

Bekijk alle woningen in Villaparken

Gegevens van Portiekflat (appartement)

Bouwjaar
2004
Geschatte waarde
€ 489.000
Oppervlakte
100 m2
Inhoud
344 m3
Aantal kamers
3 kamers
Slaapkamers
2
Badkamers
1 badkamer en 1 apart toilet
Soort bouw
Bestaande bouw
Eigendomssituatie
Volle eigendom
Ligging
Aan park en in bosrijke omgeving

Voorzieningen in de buurt

Boodschappen1,5 km
Grote supermarkt2,0 km
Cafetaria1,3 km
Restaurant0,9 km
Huisarts1,8 km
Ziekenhuis4,7 km
Kinderdagverblijf0,6 km
BSO1,3 km
Alle voorzieningen in Villaparken

Binnenkijken bij Wisseloordlaan 31 te Hilversum

Meer meldingen in deze omgeving

Nieuw bedrijf
Februari 2026
Beethovenlaan 39, 1217CH Hilversum

112 melding
Zaterdag 7-2-2026 om 17:54
Regentesselaan, Hilversum

Binnenkijken bij
Zaterdag 7-2-2026
Wisseloordlaan 8, 1217CS Hilversum

Binnenkijken bij
Donderdag 5-2-2026
Palestrinalaan 8, 1217CE Hilversum

Binnenkijken bij
Vrijdag 30-1-2026
's-Gravelandseweg 90, 1217EZ Hilversum

Binnenkijken bij
Zondag 25-1-2026
Rossinilaan 12, 1217CB Hilversum

Binnenkijken bij
Donderdag 22-1-2026
Nimrodlaan 1, 1217EC Hilversum

Binnenkijken bij
Donderdag 22-1-2026
Boslaan 4, 1217CV Hilversum

Direct een e-mail ontvangen bij nieuwe meldingen in deze regio?

Meld je dan GRATIS aan voor de Oozo Alert service voor Villaparken

Instellen

Meer nieuws in Villaparken

Weten hoe eenvoudig het is om af te vallen? Zonder pillen en smeersels en zonder je in het zweet te werken!
Kijk op eenvoudig-afvallen.nl

© 2012 - 2026 OOZO.nl - info@oozo.nl - Gegevens verwijderen? | Disclaimer | Privacy statement