Woning Egelantierstraat 6 Hilversum

Egelantierstraat 6, 1214ED Hilversum

Ontvang updates voor Bloemenkwartier Noord

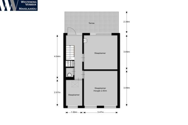
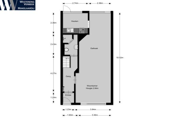
Het adres van deze woning uit 1906 is Egelantierstraat 6 te Hilversum. Het pand heeft een oppervlakte van 97m² en een perceeloppervlakte van 127m² en heeft 4 kamers kamers waarvan 3 slaapkamers. De geschatte waarde van deze woning is € 325.000.

Bekijk alle woningen in Bloemenkwartier Noord

Gegevens van Eengezinswoning, tussenwoning

Bouwjaar
1906
Geschatte waarde
€ 325.000
Oppervlakte
97 m2
Inhoud
447 m3
Aantal kamers
4 kamers
Slaapkamers
3
Badkamers
1 badkamer en 1 apart toilet
Soort bouw
Bestaande bouw
Eigendomssituatie
Volle eigendom
Ligging
Aan rustige weg en in woonwijk
Tuin
Achtertuin en voortuin
Achtertuin
47 m² (8,5m diep en 5,5m breed)

Voorzieningen in de buurt

Boodschappen0,3 km
Grote supermarkt0,4 km
Cafetaria0,2 km
Restaurant0,2 km
Huisarts0,4 km
Ziekenhuis2,3 km
Kinderdagverblijf0,4 km
BSO0,3 km
Alle voorzieningen in Bloemenkwartier Noord

Binnenkijken bij Egelantierstraat 6 te Hilversum

Meer meldingen in deze omgeving

Nieuw bedrijf
Maart 2026
Chrysantenstraat 35, 1214BL Hilversum

Binnenkijken bij
Donderdag 12-3-2026
Tulpstraat 47, 1214CC Hilversum

Binnenkijken bij
Donderdag 12-3-2026
Koningsstraat 6512, 1211NK Hilversum

Nieuw bedrijf
Maart 2026
Rozenstraat 82, 1214BW Hilversum

Nieuw bedrijf
Maart 2026
Rozenstraat 82, 1214BW Hilversum

Binnenkijken bij
Dinsdag 24-2-2026
Hilvertsweg 69, 1214JA Hilversum

Binnenkijken bij
Dinsdag 24-2-2026
Koningsstraat 6518, 1211NK Hilversum

Nieuw bedrijf
Februari 2026
Tulpstraat 25, 1214CC Hilversum

Direct een e-mail ontvangen bij nieuwe meldingen in deze regio?

Meld je dan GRATIS aan voor de Oozo Alert service voor Bloemenkwartier Noord

Instellen

Meer nieuws in Bloemenkwartier Noord

Weten hoe eenvoudig het is om af te vallen? Zonder pillen en smeersels en zonder je in het zweet te werken!
Kijk op eenvoudig-afvallen.nl

© 2012 - 2026 OOZO.nl - info@oozo.nl - Gegevens verwijderen? | Disclaimer | Privacy statement