Woning Willem Barentszweg 166 Hilversum

Willem Barentszweg 166, 1212BP Hilversum

Ontvang updates voor Van Riebeeckkwartier

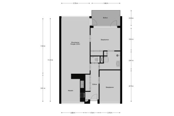
Het adres van deze woning uit 1973 is Willem Barentszweg 166 te Hilversum. Het pand heeft een oppervlakte van 81m² en heeft 3 kamers kamers waarvan 2 slaapkamers. De geschatte waarde van deze woning is € 329.000.

Bekijk alle woningen in Van Riebeeckkwartier

Gegevens van Galerijflat (appartement)

Bouwjaar
1973
Geschatte waarde
€ 329.000
Oppervlakte
81 m2
Inhoud
268 m3
Aantal kamers
3 kamers
Slaapkamers
2
Badkamers
1 badkamer en 1 apart toilet
Soort bouw
Bestaande bouw
Eigendomssituatie
Volle eigendom
Ligging
Aan rustige weg, in woonwijk en vrij uitzicht

Voorzieningen in de buurt

Boodschappen0,3 km
Grote supermarkt0,4 km
Cafetaria0,4 km
Restaurant0,6 km
Huisarts0,9 km
Ziekenhuis0,5 km
Kinderdagverblijf0,3 km
BSO0,3 km
Alle voorzieningen in Van Riebeeckkwartier

Binnenkijken bij Willem Barentszweg 166 te Hilversum

Meer meldingen in deze omgeving

Binnenkijken bij
Vrijdag 10-4-2026
Van Riebeeckweg 111, 1212EJ Hilversum

Nieuw bedrijf
April 2026
Willem Barentszweg 24, 1212BL Hilversum

Nieuw bedrijf
April 2026
Van Linschotenlaan 2, 1212ET Hilversum

Binnenkijken bij
Donderdag 2-4-2026
Willem Bontekoestraat 23, 1212BX Hilversum

Binnenkijken bij
Donderdag 2-4-2026
Jacob van Heemskerckstraat 10, 1212CD Hilversum

Binnenkijken bij
Zondag 29-3-2026
Van Linschotenlaan 77, 1212DR Hilversum

Binnenkijken bij
Zondag 29-3-2026
Willem Barentszweg 119 Garagebox 14, 1212BK Hilversum

Binnenkijken bij
Zondag 29-3-2026
Willem Barentszweg 119 Garagebox 3, 1212BK Hilversum

Direct een e-mail ontvangen bij nieuwe meldingen in deze regio?

Meld je dan GRATIS aan voor de Oozo Alert service voor Van Riebeeckkwartier

Instellen

Meer nieuws in Van Riebeeckkwartier

Weten hoe eenvoudig het is om af te vallen? Zonder pillen en smeersels en zonder je in het zweet te werken!
Kijk op eenvoudig-afvallen.nl

© 2012 - 2026 OOZO.nl - info@oozo.nl - Gegevens verwijderen? | Disclaimer | Privacy statement