Woning Waterstraat 9 Goor

Waterstraat 9, 7471AR Goor

Ontvang updates voor Centrum-Goor

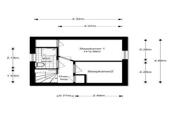
Het adres van deze woning uit 1922 is Waterstraat 9 te Goor. Het pand heeft een oppervlakte van 51m² en een perceeloppervlakte van 74m² en heeft 3 kamers kamers waarvan 2 slaapkamers. De geschatte waarde van deze woning is € 139.000.

Bekijk alle woningen in Centrum-Goor

Gegevens van Eengezinswoning, tussenwoning

Bouwjaar
1922
Geschatte waarde
€ 139.000
Oppervlakte
51 m2
Inhoud
177 m3
Aantal kamers
3 kamers
Slaapkamers
2
Badkamers
1 apart toilet
Soort bouw
Bestaande bouw
Eigendomssituatie
Volle eigendom
Ligging
Aan rustige weg, in centrum en in woonwijk
Tuin
Achtertuin
Achtertuin
M² (0,1m diep en 0,05m breed)

Voorzieningen in de buurt

Boodschappen0,3 km
Grote supermarkt0,5 km
Cafetaria0,3 km
Restaurant0,3 km
Huisarts0,6 km
Ziekenhuis10,8 km
Kinderdagverblijf0,5 km
BSO0,5 km
Alle voorzieningen in Centrum-Goor

Binnenkijken bij Waterstraat 9 te Goor

Meer meldingen in deze omgeving

Binnenkijken bij
Vrijdag 26-12-2025
van Kollaan 4, 7471DR Goor

Binnenkijken bij
Zondag 14-12-2025
Irisstraat 15, 7471AS Goor

Nieuw bedrijf
December 2025
't Schild 4, 7471CR Goor

Binnenkijken bij
Donderdag 4-12-2025
Klaproosstraat 2, 7471JK Goor

112 melding
Woensdag 3-12-2025 om 12:22
De Weverij, 7471VR Goor

Binnenkijken bij
Vrijdag 28-11-2025
Waterstraat 66, 7471AR Goor

112 melding
Maandag 24-11-2025 om 16:49
Weversplein, 7471VS Goor

Binnenkijken bij
Vrijdag 14-11-2025
Waterstraat 5A, 7471AR Goor

Direct een e-mail ontvangen bij nieuwe meldingen in deze regio?

Meld je dan GRATIS aan voor de Oozo Alert service voor Centrum-Goor

Instellen

Meer nieuws in Centrum-Goor

Weten hoe eenvoudig het is om af te vallen? Zonder pillen en smeersels en zonder je in het zweet te werken!
Kijk op eenvoudig-afvallen.nl

© 2012 - 2025 OOZO.nl - info@oozo.nl - Gegevens verwijderen? | Disclaimer | Privacy statement