Woning van Deelestraat 19 Goor

van Deelestraat 19, 7471SN Goor

Ontvang updates voor Heeckeren

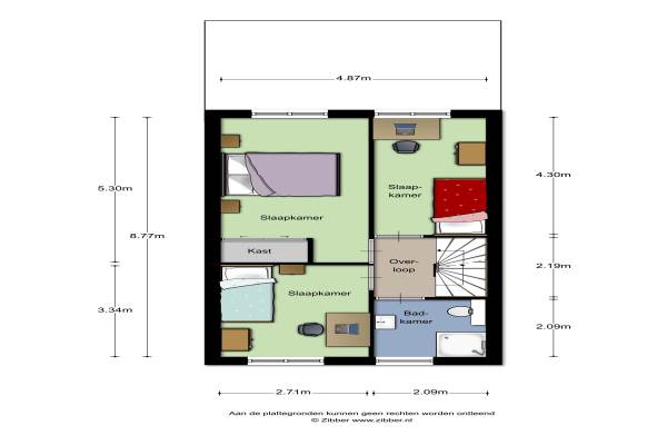
Het adres van deze woning uit 1983 is van Deelestraat 19 te Goor. Het pand heeft een oppervlakte van 104m² en een perceeloppervlakte van 139m² en heeft 5 kamers kamers waarvan 4 slaapkamers. De geschatte waarde van deze woning is € 184.500.

Bekijk alle woningen in Heeckeren

Gegevens van Eengezinswoning, tussenwoning

Bouwjaar
1983
Geschatte waarde
€ 184.500
Oppervlakte
104 m2
Inhoud
383 m3
Aantal kamers
5 kamers
Slaapkamers
4
Badkamers
1 badkamer en 1 apart toilet
Soort bouw
Bestaande bouw
Eigendomssituatie
Volle eigendom
Ligging
Aan rustige weg en in woonwijk
Tuin
Achtertuin en voortuin

Voorzieningen in de buurt

Boodschappen0,8 km
Grote supermarkt1,3 km
Cafetaria0,6 km
Restaurant0,6 km
Huisarts1,2 km
Ziekenhuis10,8 km
Kinderdagverblijf0,4 km
BSO0,4 km
Alle voorzieningen in Heeckeren

Binnenkijken bij van Deelestraat 19 te Goor

Meer meldingen in deze omgeving

Binnenkijken bij
Dinsdag 25-11-2025
Molenstraat 8, 7471CL Goor

Nieuw bedrijf
November 2025
van Deelestraat 17, 7471SN Goor

Binnenkijken bij
Dinsdag 11-11-2025
van Heeckerenweg 52, 7471SH Goor

Binnenkijken bij
Donderdag 30-10-2025
Binnenhagen 15, 7471CN Goor

Nieuw bedrijf
Oktober 2025
Hengevelderstraat 45, 7471CG Goor

112 melding
Dinsdag 28-10-2025 om 17:17
Lintelerweg, 7471LB Goor

112 melding
Dinsdag 28-10-2025 om 17:16
Lintelerweg, 7471LB Goor

112 melding
Vrijdag 17-10-2025 om 23:26
Van Coeverdenstraat, Goor

Direct een e-mail ontvangen bij nieuwe meldingen in deze regio?

Meld je dan GRATIS aan voor de Oozo Alert service voor Heeckeren

Instellen

Meer nieuws in Heeckeren

Weten hoe eenvoudig het is om af te vallen? Zonder pillen en smeersels en zonder je in het zweet te werken!
Kijk op eenvoudig-afvallen.nl

© 2012 - 2025 OOZO.nl - info@oozo.nl - Gegevens verwijderen? | Disclaimer | Privacy statement