Woning Enkelaarsweg 18 Markelo

Enkelaarsweg 18, 7475PL Markelo

Ontvang updates voor Verspreide huizen Markelerbroek

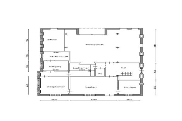
Het adres van deze woning uit 1890 is Enkelaarsweg 18 te Markelo. Het pand heeft een oppervlakte van 272m² en een perceeloppervlakte van 4630m² en heeft 6 kamers kamers waarvan 4 slaapkamers. De geschatte waarde van deze woning is € 745.000.

Bekijk alle woningen in Verspreide huizen Markelerbroek

Gegevens van Woonboerderij, vrijstaande woning

Bouwjaar
1890
Geschatte waarde
€ 745.000
Oppervlakte
272 m2
Inhoud
837 m3
Aantal kamers
6 kamers
Slaapkamers
4
Soort bouw
Bestaande bouw
Eigendomssituatie
Volle eigendom
Ligging
Aan rustige weg, vrij uitzicht, open ligging, buiten bebouwde kom en landelijk gelegen
Tuin
Tuin rondom

Voorzieningen in de buurt

Boodschappen4,4 km
Grote supermarkt4,4 km
Cafetaria4,3 km
Restaurant3,4 km
Huisarts4,5 km
Ziekenhuis10,0 km
Kinderdagverblijf3,1 km
BSO4,7 km
Alle voorzieningen in Verspreide huizen Markelerbroek

Binnenkijken bij Enkelaarsweg 18 te Markelo

Meer meldingen in deze omgeving

112 melding
Maandag 26-1-2026 om 11:45
Visschersdijk, 7475PG Markelo

Nieuw bedrijf
Januari 2026
Roudaalterweg 9, 7475RL Markelo

Nieuw bedrijf
Januari 2026
Roudaalterweg 9, 7475RL Markelo

112 melding
Woensdag 21-1-2026 om 08:27
Visschersdijk, 7475PG Markelo

112 melding
Woensdag 21-1-2026 om 07:33
Visschersdijk, 7475PG Markelo

112 melding
Woensdag 21-1-2026 om 07:33
Visschersdijk, 7475PG Markelo

112 melding
Woensdag 21-1-2026 om 07:33
Visschersdijk, 7475PG Markelo

112 melding
Woensdag 21-1-2026 om 07:27
Visschersdijk, 7475PG Markelo

Direct een e-mail ontvangen bij nieuwe meldingen in deze regio?

Meld je dan GRATIS aan voor de Oozo Alert service voor Verspreide huizen Markelerbroek

Instellen

Meer nieuws in Verspreide huizen Markelerbroek

Weten hoe eenvoudig het is om af te vallen? Zonder pillen en smeersels en zonder je in het zweet te werken!
Kijk op eenvoudig-afvallen.nl

© 2012 - 2026 OOZO.nl - info@oozo.nl - Gegevens verwijderen? | Disclaimer | Privacy statement