Woning Nieuwstraat 33 Hippolytushoef

Nieuwstraat 33, 1777CL Hippolytushoef

Ontvang updates voor Hippolytushoef

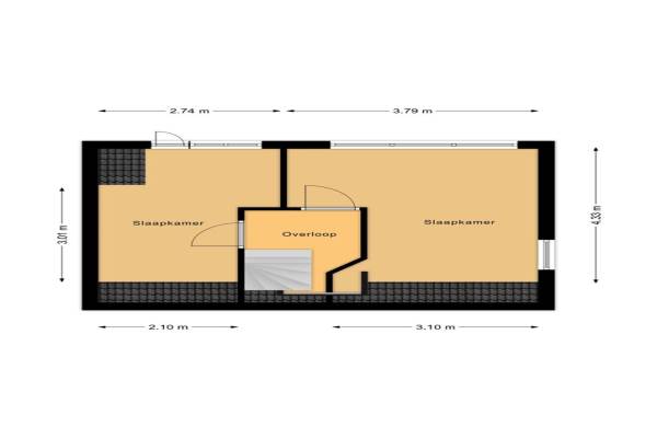
Het adres van deze woning uit 1896 is Nieuwstraat 33 te Hippolytushoef. Het pand heeft een oppervlakte van 99m² en een perceeloppervlakte van 121m² en heeft 3 kamers kamers waarvan 2 slaapkamers. De geschatte waarde van deze woning is € 190.000.

Bekijk alle woningen in Hippolytushoef

Gegevens van -

Bouwjaar
1896
Geschatte waarde
€ 190.000
Oppervlakte
99 m2
Inhoud
335 m3
Aantal kamers
3 kamers
Slaapkamers
2

Voorzieningen in de buurt

Boodschappen0,5 km
Grote supermarkt0,6 km
Cafetaria0,6 km
Restaurant0,6 km
Huisarts0,6 km
Ziekenhuis20,8 km
Kinderdagverblijf0,9 km
BSO0,9 km
Alle voorzieningen in Hippolytushoef

Binnenkijken bij Nieuwstraat 33 te Hippolytushoef

Meer meldingen in deze omgeving

112 melding
Dinsdag 14-4-2026 om 15:46
Seringenlaan, 1777EE Hippolytushoef

112 melding
Dinsdag 14-4-2026 om 14:59
Hendsweel, 1777MA Hippolytushoef

112 melding
Dinsdag 14-4-2026 om 11:19
Elft, 1777AC Hippolytushoef

112 melding
Dinsdag 14-4-2026 om 10:13
Bierdijkerweg, 1777 Hippolytushoef

112 melding
Dinsdag 14-4-2026 om 09:18
Broekerlaan & Batumweg, 1777 Hippolytushoef

112 melding
Dinsdag 14-4-2026 om 09:09
Swarte Liester, 1777DT Hippolytushoef

112 melding
Dinsdag 14-4-2026 om 08:56
Beltstraat, 1777HB Hippolytushoef

Binnenkijken bij
Dinsdag 14-4-2026
Klieftstraat 50, 1777GD Hippolytushoef

Direct een e-mail ontvangen bij nieuwe meldingen in deze regio?

Meld je dan GRATIS aan voor de Oozo Alert service voor Hippolytushoef

Instellen

Meer nieuws in Hippolytushoef

Weten hoe eenvoudig het is om af te vallen? Zonder pillen en smeersels en zonder je in het zweet te werken!
Kijk op eenvoudig-afvallen.nl

© 2012 - 2026 OOZO.nl - info@oozo.nl - Gegevens verwijderen? | Disclaimer | Privacy statement