Woning Prieswijk 138 Elim

Prieswijk 138, 7916RM Elim

Ontvang updates voor Elim Kern

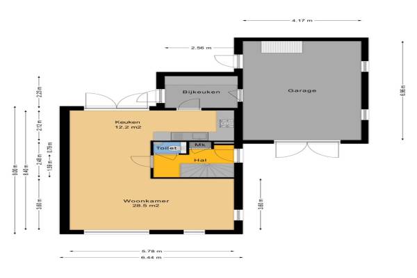
Het adres van deze woning uit 1986 is Prieswijk 138 te Elim. Het pand heeft een oppervlakte van 122m² en een perceeloppervlakte van 372m² en heeft 6 kamers kamers waarvan 5 slaapkamers. De geschatte waarde van deze woning is € 325.000.

Bekijk alle woningen in Elim Kern

Gegevens van Twee onder één kap

Bouwjaar
1986
Geschatte waarde
€ 325.000
Oppervlakte
122 m2
Inhoud
573 m3
Aantal kamers
6 kamers
Slaapkamers
5
Badkamers
1 badkamer en 1 apart toilet
Soort bouw
Bestaande bouw
Eigendomssituatie
Volle eigendom
Ligging
Aan rustige weg en in woonwijk
Tuin
Tuin
Achtertuin
143 m² (14,7 meter diep en 12,1 meter breed)

Voorzieningen in de buurt

Boodschappen0,3 km
Grote supermarkt0,4 km
Cafetaria4,9 km
Restaurant0,3 km
Huisarts0,5 km
Ziekenhuis13,0 km
Kinderdagverblijf0,4 km
BSO5,0 km
Alle voorzieningen in Elim Kern

Binnenkijken bij Prieswijk 138 te Elim

Meer meldingen in deze omgeving

112 melding
Zaterdag 16-5-2026 om 01:06
Gosem Engelsstraat, 7916PX Elim

112 melding
Zaterdag 16-5-2026 om 01:04
Gosem Engelsstraat, 7916PX Elim

Nieuw bedrijf
Mei 2026
De Vaarboom 21, 7916RK Elim

Binnenkijken bij
Dinsdag 5-5-2026
De Vaarboom 20, 7916RK Elim

Binnenkijken bij
Dinsdag 5-5-2026
Dorpsstraat 8, 7916PC Elim

Nieuw bedrijf
April 2026
De Richter 4, 7916RX Elim

Binnenkijken bij
Donderdag 12-3-2026
van Leeuwenstraat 35, 7916PP Elim

Binnenkijken bij
Maandag 9-3-2026
Carstensdijk 148, 7916RC Elim

Direct een e-mail ontvangen bij nieuwe meldingen in deze regio?

Meld je dan GRATIS aan voor de Oozo Alert service voor Elim Kern

Instellen

Meer nieuws in Elim Kern

Weten hoe eenvoudig het is om af te vallen? Zonder pillen en smeersels en zonder je in het zweet te werken!
Kijk op eenvoudig-afvallen.nl

© 2012 - 2026 OOZO.nl - info@oozo.nl - Gegevens verwijderen? | Disclaimer | Privacy statement