Woning De Turfsteker 7913 Hollandscheveld

De Turfsteker 7913, 7913 Hollandscheveld

Ontvang updates voor Hollandscheveld

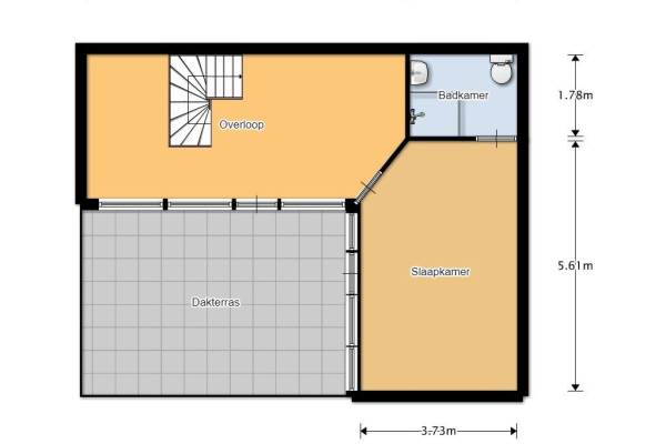
Het adres van deze woning uit 2019 is De Turfsteker 7913 te Hollandscheveld. Het pand heeft een oppervlakte van 128m² en een perceeloppervlakte van 272m² en heeft 5 kamers kamers waarvan 3 slaapkamers. De geschatte waarde van deze woning is € 329.500.

Bekijk alle woningen in Hollandscheveld

Gegevens van Bungalow, geschakelde woning (kwadrant woning)

Bouwjaar
2019
Geschatte waarde
€ 329.500
Oppervlakte
128 m2
Inhoud
475 m3
Aantal kamers
5 kamers
Slaapkamers
3
Badkamers
2 badkamers en 1 apart toilet
Soort bouw
Nieuwbouw
Eigendomssituatie
Volle eigendom
Ligging
Aan rustige weg en in woonwijk
Tuin
Voortuin en zijtuin

Voorzieningen in de buurt

Boodschappen0,8 km
Grote supermarkt0,8 km
Cafetaria0,9 km
Restaurant0,8 km
Huisarts0,9 km
Ziekenhuis8,1 km
Kinderdagverblijf0,8 km
BSO1,0 km
Alle voorzieningen in Hollandscheveld

Binnenkijken bij De Turfsteker 7913 te Hollandscheveld

Meer meldingen in deze omgeving

Binnenkijken bij
Zondag 29-3-2026
Ds Kooimanstraat 4, 7913AX Hollandscheveld

Binnenkijken bij
Zondag 29-3-2026
Boswijk 6, 7913VR Hollandscheveld

Binnenkijken bij
Zondag 29-3-2026
De Poste 40, 7913RH Hollandscheveld


Binnenlands nieuws
Zaterdag 28-3-2026
Hollandscheveld

Binnenlands nieuws
Zaterdag 28-3-2026
Hollandscheveld

Binnenlands nieuws
Zaterdag 28-3-2026
Hollandscheveld

Nieuw bedrijf
Maart 2026
Kerkenkavel 17, 7913AS Hollandscheveld

Direct een e-mail ontvangen bij nieuwe meldingen in deze regio?

Meld je dan GRATIS aan voor de Oozo Alert service voor Hollandscheveld

Instellen

Meer nieuws in Hollandscheveld

Weten hoe eenvoudig het is om af te vallen? Zonder pillen en smeersels en zonder je in het zweet te werken!
Kijk op eenvoudig-afvallen.nl

© 2012 - 2026 OOZO.nl - info@oozo.nl - Gegevens verwijderen? | Disclaimer | Privacy statement