Woning Boekweitlaan 57 Hoogeveen

Boekweitlaan 57, 7906LB Hoogeveen

Ontvang updates voor Zuid

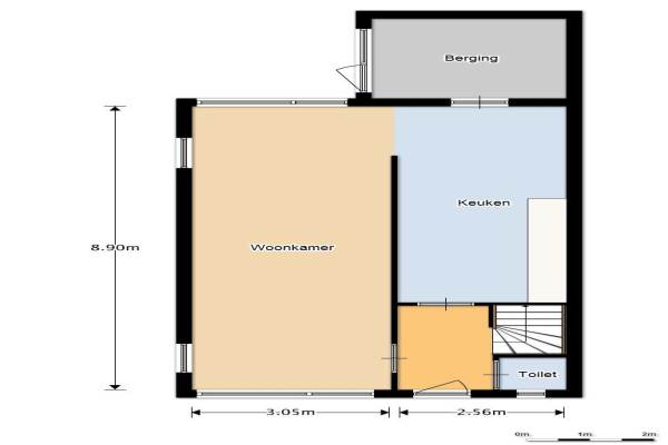
Het adres van deze woning uit 1963 is Boekweitlaan 57 te Hoogeveen. Het pand heeft een oppervlakte van 104m² en een perceeloppervlakte van 234m² en heeft 5 kamers kamers waarvan 4 slaapkamers. De geschatte waarde van deze woning is € 159.500.

Bekijk alle woningen in Zuid

Gegevens van Eengezinswoning, 2-onder-1-kapwoning

Bouwjaar
1963
Geschatte waarde
€ 159.500
Oppervlakte
104 m2
Inhoud
285 m3
Aantal kamers
5 kamers
Slaapkamers
4
Badkamers
1 badkamer en 1 apart toilet
Soort bouw
Bestaande bouw
Eigendomssituatie
Volle eigendom
Ligging
In woonwijk
Tuin
Achtertuin, voortuin en zijtuin
Achtertuin
96 m² (12m diep en 8m breed)

Voorzieningen in de buurt

Boodschappen0,5 km
Grote supermarkt0,5 km
Cafetaria0,4 km
Restaurant0,4 km
Huisarts1,1 km
Ziekenhuis3,1 km
Kinderdagverblijf0,5 km
BSO0,5 km
Alle voorzieningen in Zuid

Binnenkijken bij Boekweitlaan 57 te Hoogeveen

Meer meldingen in deze omgeving

Nieuw bedrijf
December 2025
Etstoelstraat 22, 7906CT Hoogeveen

Nieuw bedrijf
December 2025
Anjerstraat 46, 7906LE Hoogeveen

Binnenkijken bij
Dinsdag 23-12-2025
Tichelwerkstraat 4, 7906HX Hoogeveen

Binnenkijken bij
Zaterdag 20-12-2025
Klijnsmastraat 10, 7906DN Hoogeveen

Binnenkijken bij
Zaterdag 20-12-2025
Tichelwerkstraat 46, 7906HX Hoogeveen

Binnenkijken bij
Zaterdag 20-12-2025
Wethouder Robaardstraat 30A, 7906AV Hoogeveen

Binnenkijken bij
Zaterdag 20-12-2025
Wethouder Robaardstraat 22, 7906AV Hoogeveen

Binnenkijken bij
Dinsdag 16-12-2025
Albert Steenbergenstraat 2B, 7906BG Hoogeveen

Direct een e-mail ontvangen bij nieuwe meldingen in deze regio?

Meld je dan GRATIS aan voor de Oozo Alert service voor Zuid

Instellen

Meer nieuws in Zuid

Weten hoe eenvoudig het is om af te vallen? Zonder pillen en smeersels en zonder je in het zweet te werken!
Kijk op eenvoudig-afvallen.nl

© 2012 - 2025 OOZO.nl - info@oozo.nl - Gegevens verwijderen? | Disclaimer | Privacy statement