Woning Boekweitlaan 7906 Hoogeveen

Boekweitlaan 7906, 7906LD Hoogeveen

Ontvang updates voor Zuid

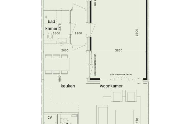
Het adres van deze woning uit 2018 is Boekweitlaan 7906 te Hoogeveen. Het pand heeft een oppervlakte van 70m² en een perceeloppervlakte van 166m² en heeft 2 kamers kamers waarvan 1 slaapkamers. De geschatte waarde van deze woning is € 174.750.

Bekijk alle woningen in Zuid

Gegevens van Eengezinswoning, tussenwoning

Bouwjaar
2018
Geschatte waarde
€ 174.750
Oppervlakte
70 m2
Inhoud
230 m3
Aantal kamers
2 kamers
Slaapkamers
1
Soort bouw
Nieuwbouw
Ligging
Aan water, aan rustige weg, in woonwijk en vrij uitzicht
Tuin
Achtertuin
Achtertuin
35 m² (9m diep en 3,85m breed)

Voorzieningen in de buurt

Boodschappen0,5 km
Grote supermarkt0,5 km
Cafetaria0,4 km
Restaurant0,4 km
Huisarts1,1 km
Ziekenhuis3,1 km
Kinderdagverblijf0,5 km
BSO0,5 km
Alle voorzieningen in Zuid

Binnenkijken bij Boekweitlaan 7906 te Hoogeveen

Meer meldingen in deze omgeving

Nieuw bedrijf
December 2025
Anjerstraat 46, 7906LE Hoogeveen

Binnenkijken bij
Dinsdag 23-12-2025
Tichelwerkstraat 4, 7906HX Hoogeveen

Binnenkijken bij
Zaterdag 20-12-2025
Klijnsmastraat 10, 7906DN Hoogeveen

Binnenkijken bij
Zaterdag 20-12-2025
Tichelwerkstraat 46, 7906HX Hoogeveen

Binnenkijken bij
Zaterdag 20-12-2025
Wethouder Robaardstraat 30A, 7906AV Hoogeveen

Binnenkijken bij
Zaterdag 20-12-2025
Wethouder Robaardstraat 22, 7906AV Hoogeveen

Binnenkijken bij
Dinsdag 16-12-2025
Albert Steenbergenstraat 2B, 7906BG Hoogeveen

Nieuw bedrijf
December 2025
Wijnbergstraat 4, 7906DM Hoogeveen

Direct een e-mail ontvangen bij nieuwe meldingen in deze regio?

Meld je dan GRATIS aan voor de Oozo Alert service voor Zuid

Instellen

Meer nieuws in Zuid

Weten hoe eenvoudig het is om af te vallen? Zonder pillen en smeersels en zonder je in het zweet te werken!
Kijk op eenvoudig-afvallen.nl

© 2012 - 2025 OOZO.nl - info@oozo.nl - Gegevens verwijderen? | Disclaimer | Privacy statement