Woning Achterom 93 Hoorn Nh

Achterom 93, 1621KS Hoorn Nh

Ontvang updates voor Binnenstad - Buurt 10 02

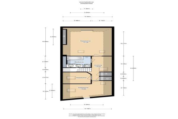
Het adres van deze woning uit 1812 is Achterom 93 te Hoorn Nh. Het pand heeft een oppervlakte van 123m² en een perceeloppervlakte van 113m² en heeft 4 kamers kamers waarvan 3 slaapkamers. De geschatte waarde van deze woning is € 275.000.

Bekijk alle woningen in Binnenstad - Buurt 10 02

Gegevens van Eengezinswoning, hoekwoning

Bouwjaar
1812
Geschatte waarde
€ 275.000
Oppervlakte
123 m2
Inhoud
330 m3
Aantal kamers
4 kamers
Slaapkamers
3
Badkamers
1 badkamer en 1 apart toilet
Soort bouw
Bestaande bouw
Eigendomssituatie
Volle eigendom
Ligging
In centrum
Tuin
Achtertuin
Achtertuin
33 m² (5,5m diep en 6m breed)

Voorzieningen in de buurt

Boodschappen0,1 km
Grote supermarkt0,2 km
Cafetaria0,1 km
Restaurant0,1 km
Huisarts0,4 km
Ziekenhuis1,5 km
Kinderdagverblijf0,6 km
BSO0,5 km
Alle voorzieningen in Binnenstad - Buurt 10 02

Binnenkijken bij Achterom 93 te Hoorn Nh

Meer meldingen in deze omgeving

112 melding
Zaterdag 29-11-2025 om 02:32
Westerdijk, Hoorn

112 melding
Vrijdag 28-11-2025 om 14:29
Westerdijk, Hoorn

112 melding
Donderdag 27-11-2025 om 20:49
Westerdijk, 1621LC Hoorn

112 melding
Donderdag 27-11-2025 om 14:11
Gravenstraat, 1621CR Hoorn

112 melding
Donderdag 27-11-2025 om 14:11
Gravenstraat, 1621CR Hoorn

112 melding
Donderdag 27-11-2025 om 12:39
Westerdijk, 1621LC Hoorn

112 melding
Woensdag 26-11-2025 om 07:53
Westerdijk, Hoorn

112 melding
Woensdag 26-11-2025 om 06:39
Achterom, 1621KP Hoorn

Direct een e-mail ontvangen bij nieuwe meldingen in deze regio?

Meld je dan GRATIS aan voor de Oozo Alert service voor Binnenstad - Buurt 10 02

Instellen

Meer nieuws in Binnenstad - Buurt 10 02

Weten hoe eenvoudig het is om af te vallen? Zonder pillen en smeersels en zonder je in het zweet te werken!
Kijk op eenvoudig-afvallen.nl

© 2012 - 2025 OOZO.nl - info@oozo.nl - Gegevens verwijderen? | Disclaimer | Privacy statement