Woning Wagenaarstraat 10 Blokker

Wagenaarstraat 10, 1695BV Blokker

Ontvang updates voor Blokker - Buurt 31 04

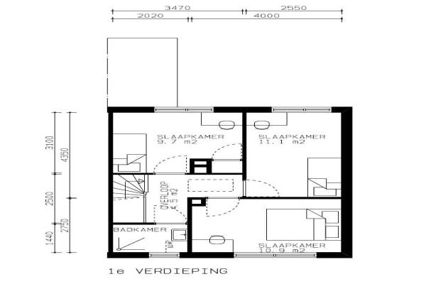
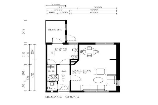
Het adres van deze woning uit 1958 is Wagenaarstraat 10 te Blokker. Het pand heeft een oppervlakte van 84m² en een perceeloppervlakte van 195m² en heeft 4 kamers kamers waarvan 3 slaapkamers. De geschatte waarde van deze woning is € 150.000.

Bekijk alle woningen in Blokker - Buurt 31 04

Gegevens van Eengezinswoning, hoekwoning

Bouwjaar
1958
Geschatte waarde
€ 150.000
Oppervlakte
84 m2
Inhoud
259 m3
Aantal kamers
4 kamers
Slaapkamers
3
Badkamers
1 badkamer en 1 apart toilet
Soort bouw
Bestaande bouw
Eigendomssituatie
Volle eigendom
Ligging
In woonwijk
Tuin
Achtertuin, voortuin en zijtuin
Achtertuin
158 m² (25m diep en 6,3m breed)

Voorzieningen in de buurt

Boodschappen0,5 km
Grote supermarkt0,5 km
Cafetaria0,5 km
Restaurant1,3 km
Huisarts0,5 km
Ziekenhuis3,4 km
Kinderdagverblijf0,5 km
BSO0,3 km
Alle voorzieningen in Blokker - Buurt 31 04

Binnenkijken bij Wagenaarstraat 10 te Blokker

Meer meldingen in deze omgeving

112 melding
Zaterdag 4-10-2025 om 13:29
Jonathanlaan, 1695HR Blokker

112 melding
Zaterdag 4-10-2025 om 13:29
Jonathanlaan, 1695HR Blokker

112 melding
Donderdag 2-10-2025 om 15:45
Boekerij, Blokker

112 melding
Woensdag 1-10-2025 om 14:57
Sint Josephpark, 1695AN Blokker

112 melding
Woensdag 1-10-2025 om 14:37
Florastraat, 1695BK Blokker

112 melding
Woensdag 1-10-2025 om 14:25
Florastraat, 1695BH Blokker

112 melding
Woensdag 1-10-2025 om 10:56
Florastraat, 1695BJ Blokker

112 melding
Dinsdag 30-9-2025 om 15:34
Boomgaarden, 1695BN Blokker

Direct een e-mail ontvangen bij nieuwe meldingen in deze regio?

Meld je dan GRATIS aan voor de Oozo Alert service voor Blokker - Buurt 31 04

Instellen

Meer nieuws in Blokker - Buurt 31 04

Weten hoe eenvoudig het is om af te vallen? Zonder pillen en smeersels en zonder je in het zweet te werken!
Kijk op eenvoudig-afvallen.nl

© 2012 - 2025 OOZO.nl - info@oozo.nl - Gegevens verwijderen? | Disclaimer | Privacy statement