Woning Plevier 19 Hoorn Nh

Plevier 19, 1628ES Hoorn Nh

Ontvang updates voor Kersenboogerd-Noord - Buurt 32 03

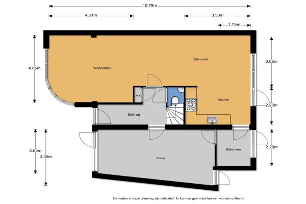
Het adres van deze woning uit 1992 is Plevier 19 te Hoorn Nh. Het pand heeft een oppervlakte van 125m² en een perceeloppervlakte van 326m² en heeft 6 kamers kamers waarvan 5 slaapkamers. De geschatte waarde van deze woning is € 319.000.

Bekijk alle woningen in Kersenboogerd-Noord - Buurt 32 03

Gegevens van Eengezinswoning, geschakelde woning

Bouwjaar
1992
Geschatte waarde
€ 319.000
Oppervlakte
125 m2
Inhoud
345 m3
Aantal kamers
6 kamers
Slaapkamers
5
Soort bouw
Bestaande bouw
Eigendomssituatie
Volle eigendom
Tuin
Achtertuin

Voorzieningen in de buurt

Boodschappen0,8 km
Grote supermarkt0,8 km
Cafetaria0,8 km
Restaurant0,7 km
Huisarts0,8 km
Ziekenhuis3,2 km
Kinderdagverblijf0,5 km
BSO0,9 km
Alle voorzieningen in Kersenboogerd-Noord - Buurt 32 03

Binnenkijken bij Plevier 19 te Hoorn Nh

Meer meldingen in deze omgeving

112 melding
Zaterdag 4-10-2025 om 00:32
Kievit, Hoorn

112 melding
Zaterdag 4-10-2025 om 00:19
Kievit, Hoorn

112 melding
Woensdag 1-10-2025 om 11:39
Watersnip, 1628ED Hoorn

112 melding
Woensdag 1-10-2025 om 09:11
IJsselweg, Hoorn

112 melding
Woensdag 1-10-2025 om 09:11
IJsselweg, Hoorn

112 melding
Dinsdag 30-9-2025 om 14:45
Watersnip, 1628ED Hoorn

112 melding
Dinsdag 30-9-2025 om 11:45
Watersnip, 1628ED Hoorn

112 melding
Dinsdag 30-9-2025 om 11:45
Watersnip, 1628ED Hoorn

Direct een e-mail ontvangen bij nieuwe meldingen in deze regio?

Meld je dan GRATIS aan voor de Oozo Alert service voor Kersenboogerd-Noord - Buurt 32 03

Instellen

Meer nieuws in Kersenboogerd-Noord - Buurt 32 03

Weten hoe eenvoudig het is om af te vallen? Zonder pillen en smeersels en zonder je in het zweet te werken!
Kijk op eenvoudig-afvallen.nl

© 2012 - 2025 OOZO.nl - info@oozo.nl - Gegevens verwijderen? | Disclaimer | Privacy statement