Woning Duke Ellingtonhof 35 Hoorn Nh

Duke Ellingtonhof 35, 1628TB Hoorn Nh

Ontvang updates voor Kersenboogerd-Zuid - Buurt 33 03

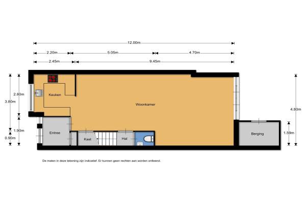
Het adres van deze woning uit 1994 is Duke Ellingtonhof 35 te Hoorn Nh. Het pand heeft een oppervlakte van 117m² en een perceeloppervlakte van 134m² en heeft 6 kamers kamers waarvan 4 slaapkamers. De geschatte waarde van deze woning is € 215.000.

Bekijk alle woningen in Kersenboogerd-Zuid - Buurt 33 03

Gegevens van Eengezinswoning, tussenwoning

Bouwjaar
1994
Geschatte waarde
€ 215.000
Oppervlakte
117 m2
Inhoud
318 m3
Aantal kamers
6 kamers
Slaapkamers
4
Soort bouw
Bestaande bouw
Eigendomssituatie
Volle eigendom
Tuin
Achtertuin
Achtertuin
54 m² (10,85m diep en 5m breed)

Voorzieningen in de buurt

Boodschappen0,5 km
Grote supermarkt0,5 km
Cafetaria0,8 km
Restaurant0,8 km
Huisarts0,6 km
Ziekenhuis3,9 km
Kinderdagverblijf0,4 km
BSO0,4 km
Alle voorzieningen in Kersenboogerd-Zuid - Buurt 33 03

Binnenkijken bij Duke Ellingtonhof 35 te Hoorn Nh

Meer meldingen in deze omgeving

112 melding
Woensdag 26-11-2025 om 16:15
Hanebalk, 1628MA Hoorn

112 melding
Woensdag 26-11-2025 om 08:43
Hanebalk, 1628MA Hoorn

Binnenkijken bij
Woensdag 26-11-2025
Acacia 7, 1628MH Hoorn (NH)

112 melding
Maandag 24-11-2025 om 16:42
Duke Ellingtonhof, 1628TD Hoorn

112 melding
Maandag 24-11-2025 om 15:29
Larix, 1628MS Hoorn

112 melding
Maandag 24-11-2025 om 11:11
Cypres, Hoorn

112 melding
Maandag 24-11-2025 om 10:44
Duke Ellingtonhof, 1628TC Hoorn

112 melding
Donderdag 20-11-2025 om 10:17
Duke Ellingtonhof, 1628TC Hoorn

Direct een e-mail ontvangen bij nieuwe meldingen in deze regio?

Meld je dan GRATIS aan voor de Oozo Alert service voor Kersenboogerd-Zuid - Buurt 33 03

Instellen

Meer nieuws in Kersenboogerd-Zuid - Buurt 33 03

Weten hoe eenvoudig het is om af te vallen? Zonder pillen en smeersels en zonder je in het zweet te werken!
Kijk op eenvoudig-afvallen.nl

© 2012 - 2025 OOZO.nl - info@oozo.nl - Gegevens verwijderen? | Disclaimer | Privacy statement