Woning Venrayseweg 39 Horst

Venrayseweg 39, 5961AD Horst

Ontvang updates voor Molenveld

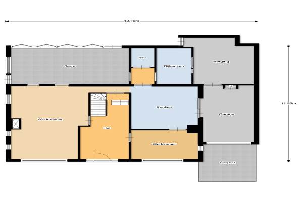
Het adres van deze woning uit 1956 is Venrayseweg 39 te Horst. Het pand heeft een oppervlakte van 178m² en een perceeloppervlakte van 490m² en heeft 10 kamers kamers waarvan 5 slaapkamers. De geschatte waarde van deze woning is € 550.000.

Bekijk alle woningen in Molenveld

Gegevens van Eengezinswoning, vrijstaande woning

Bouwjaar
1956
Geschatte waarde
€ 550.000
Oppervlakte
178 m2
Inhoud
849 m3
Aantal kamers
10 kamers
Slaapkamers
5
Badkamers
1 badkamer en 1 apart toilet
Soort bouw
Bestaande bouw
Eigendomssituatie
Volle eigendom
Ligging
Aan drukke weg en in woonwijk
Tuin
Achtertuin, voortuin en zijtuin
Achtertuin
98 m² (15,00 meter diep en 6,50 meter breed)

Voorzieningen in de buurt

Boodschappen0,9 km
Grote supermarkt1,0 km
Cafetaria0,4 km
Restaurant0,4 km
Huisarts1,4 km
Ziekenhuis1,4 km
Kinderdagverblijf0,3 km
BSO0,3 km
Alle voorzieningen in Molenveld

Binnenkijken bij Venrayseweg 39 te Horst

Meer meldingen in deze omgeving

Nieuw bedrijf
Januari 2026
Paulus Potterstraat 13, 5961AW Horst

Nieuw bedrijf
Januari 2026
Weltersweide 28, 5961EJ Horst

Nieuw bedrijf
Januari 2026
Venrayseweg 19, 5961AC Horst

112 melding
Donderdag 15-1-2026 om 10:10
Gebr. van Doornelaan, Horst

112 melding
Dinsdag 13-1-2026 om 10:56
Wittenhorststraat, Horst

112 melding
Dinsdag 13-1-2026 om 10:54
Wittenhorststraat, Horst

Binnenkijken bij
Vrijdag 9-1-2026
Pr. Margrietstraat 4, 5961BL Horst

Binnenkijken bij
Dinsdag 6-1-2026
Gebr. van Doornelaan 23, 5961BA Horst

Direct een e-mail ontvangen bij nieuwe meldingen in deze regio?

Meld je dan GRATIS aan voor de Oozo Alert service voor Molenveld

Instellen

Meer nieuws in Molenveld

Weten hoe eenvoudig het is om af te vallen? Zonder pillen en smeersels en zonder je in het zweet te werken!
Kijk op eenvoudig-afvallen.nl

© 2012 - 2026 OOZO.nl - info@oozo.nl - Gegevens verwijderen? | Disclaimer | Privacy statement