Woning Meterikseweg 157 Horst

Meterikseweg 157, 5961CV Horst

Ontvang updates voor Molenveld

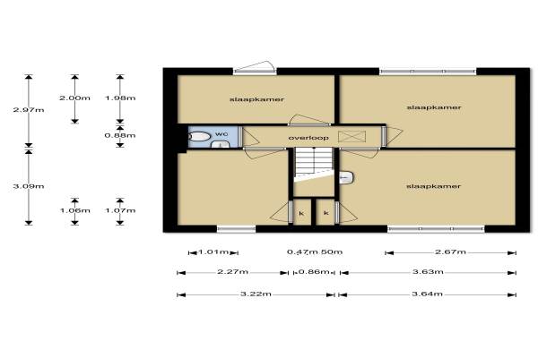
Het adres van deze woning uit 1959 is Meterikseweg 157 te Horst. Het pand heeft 7 kamers kamers waarvan 4 slaapkamers. De geschatte waarde van deze woning is € 349.000.

Bekijk alle woningen in Molenveld

Gegevens van Eengezinswoning, vrijstaande woning

Bouwjaar
1959
Geschatte waarde
€ 349.000
Oppervlakte
0 m2
Inhoud
474 m3
Aantal kamers
7 kamers
Slaapkamers
4
Badkamers
1 badkamer en 2 aparte toiletten
Soort bouw
Bestaande bouw
Eigendomssituatie
Volle eigendom
Tuin
Tuin rondom

Voorzieningen in de buurt

Boodschappen0,9 km
Grote supermarkt1,0 km
Cafetaria0,4 km
Restaurant0,4 km
Huisarts1,4 km
Ziekenhuis1,4 km
Kinderdagverblijf0,3 km
BSO0,3 km
Alle voorzieningen in Molenveld

Binnenkijken bij Meterikseweg 157 te Horst

Meer meldingen in deze omgeving

Binnenkijken bij
Donderdag 9-10-2025
Westerholtstraat 15, 5961BG Horst

Binnenkijken bij
Donderdag 9-10-2025
Willem-Alexanderstraat 6, 5961XK Horst

Nieuw bedrijf
Oktober 2025
Zegersstraat 26, 5961XS Horst

Binnenkijken bij
Donderdag 2-10-2025
Willem-Alexanderstraat 25, 5961XK Horst

Binnenkijken bij
Dinsdag 23-9-2025
Pr. Bernhardstraat 1, 5961BS Horst

Binnenkijken bij
Maandag 22-9-2025
Meterikseweg 68, 5961CX Horst

Binnenkijken bij
Vrijdag 19-9-2025
Emmastraat 19, 5961XT Horst

Nieuw bedrijf
September 2025
Zegersstraat 26, 5961XS Horst

Direct een e-mail ontvangen bij nieuwe meldingen in deze regio?

Meld je dan GRATIS aan voor de Oozo Alert service voor Molenveld

Instellen

Meer nieuws in Molenveld

Weten hoe eenvoudig het is om af te vallen? Zonder pillen en smeersels en zonder je in het zweet te werken!
Kijk op eenvoudig-afvallen.nl

© 2012 - 2025 OOZO.nl - info@oozo.nl - Gegevens verwijderen? | Disclaimer | Privacy statement