Woning Eekhoornakker 43 Houten

Eekhoornakker 43, 3994EV Houten

Ontvang updates voor Akkers

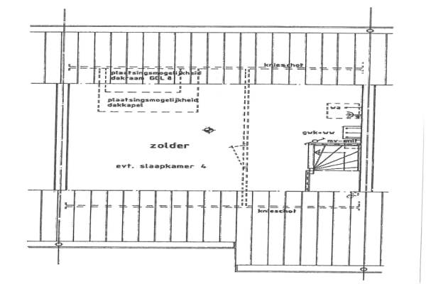
Het adres van deze woning uit 1991 is Eekhoornakker 43 te Houten. Het pand heeft een oppervlakte van 107m² en heeft 5 kamers kamers waarvan 4 slaapkamers. De geschatte waarde van deze woning is € 265.000.

Bekijk alle woningen in Akkers

Gegevens van Eengezinswoning, tussenwoning

Bouwjaar
1991
Geschatte waarde
€ 265.000
Oppervlakte
107 m2
Inhoud
360 m3
Aantal kamers
5 kamers
Slaapkamers
4
Badkamers
1 badkamer en 1 apart toilet
Soort bouw
Bestaande bouw
Ligging
Aan rustige weg en in woonwijk
Tuin
Achtertuin en voortuin
Achtertuin
54 m² (10m diep en 5,4m breed)

Voorzieningen in de buurt

Boodschappen0,4 km
Grote supermarkt0,4 km
Cafetaria1,4 km
Restaurant1,4 km
Huisarts1,0 km
Ziekenhuis1,4 km
Kinderdagverblijf0,2 km
BSO0,3 km
Alle voorzieningen in Akkers

Binnenkijken bij Eekhoornakker 43 te Houten

Meer meldingen in deze omgeving

Faillissement
Woensdag 29-4-2026
Hazenakker 16, 3994EJ Houten

Binnenkijken bij
Maandag 13-4-2026
Hazenakker 28, 3994EJ Houten

Binnenkijken bij
Maandag 6-4-2026
Edelhertakker 29, 3994EP Houten

Binnenkijken bij
Vrijdag 27-3-2026
Hazenakker 26, 3994EJ Houten

Nieuw bedrijf
Maart 2026
Woelmuisakker 37, 3994GA Houten

Binnenkijken bij
Zaterdag 28-2-2026
Edelhertakker 45, 3994EP Houten

Binnenkijken bij
Donderdag 12-2-2026
Dassenakker 33, 3994ED Houten

Binnenkijken bij
Vrijdag 30-1-2026
Wolvenakker 64, 3994EC Houten

Direct een e-mail ontvangen bij nieuwe meldingen in deze regio?

Meld je dan GRATIS aan voor de Oozo Alert service voor Akkers

Instellen

Meer nieuws in Akkers

Weten hoe eenvoudig het is om af te vallen? Zonder pillen en smeersels en zonder je in het zweet te werken!
Kijk op eenvoudig-afvallen.nl

© 2012 - 2026 OOZO.nl - info@oozo.nl - Gegevens verwijderen? | Disclaimer | Privacy statement