Woning Dorscamp 25 Houten

Dorscamp 25, 3992BP Houten

Ontvang updates voor Campen

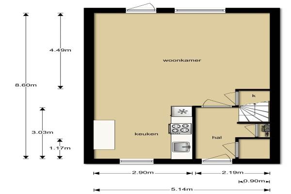
Het adres van deze woning uit 1988 is Dorscamp 25 te Houten. Het pand heeft een oppervlakte van 102m² en een perceeloppervlakte van 135m² en heeft 5 kamers kamers waarvan 4 slaapkamers. De geschatte waarde van deze woning is € 269.000.

Bekijk alle woningen in Campen

Gegevens van Eengezinswoning, tussenwoning

Bouwjaar
1988
Geschatte waarde
€ 269.000
Oppervlakte
102 m2
Inhoud
337 m3
Aantal kamers
5 kamers
Slaapkamers
4
Badkamers
1 badkamer en 1 apart toilet
Soort bouw
Bestaande bouw
Eigendomssituatie
Volle eigendom

Voorzieningen in de buurt

Boodschappen2,0 km
Grote supermarkt0,9 km
Cafetaria2,2 km
Restaurant0,9 km
Huisarts2,5 km
Ziekenhuis3,5 km
Kinderdagverblijf1,1 km
BSO1,4 km
Alle voorzieningen in Campen

Binnenkijken bij Dorscamp 25 te Houten

Meer meldingen in deze omgeving

Binnenkijken bij
Dinsdag 5-5-2026
Scherpencamp 1, 3992RB Houten

112 melding
Zaterdag 25-4-2026 om 18:44
Hoekcamp, 3992SG Houten

Nieuw bedrijf
April 2026
Meercamp 25, 3992RH Houten

Binnenkijken bij
Dinsdag 14-4-2026
Ruitercamp 115, 3992BZ Houten

Binnenkijken bij
Donderdag 2-4-2026
Dwarscamp 20, 3992RM Houten

Nieuw bedrijf
Maart 2026
Ruitercamp 21, 3992BZ Houten

Binnenkijken bij
Donderdag 19-3-2026
Coppenscamp 11, 3992SK Houten

112 melding
Zaterdag 14-3-2026 om 23:48
Heemcamp, Houten

Direct een e-mail ontvangen bij nieuwe meldingen in deze regio?

Meld je dan GRATIS aan voor de Oozo Alert service voor Campen

Instellen

Meer nieuws in Campen

Weten hoe eenvoudig het is om af te vallen? Zonder pillen en smeersels en zonder je in het zweet te werken!
Kijk op eenvoudig-afvallen.nl

© 2012 - 2026 OOZO.nl - info@oozo.nl - Gegevens verwijderen? | Disclaimer | Privacy statement