Woning Nedercamp 34 Houten

Nedercamp 34, 3992RP Houten

Ontvang updates voor Campen

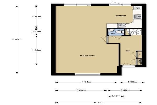
Het adres van deze woning uit 1989 is Nedercamp 34 te Houten. Het pand heeft een oppervlakte van 125m² en een perceeloppervlakte van 183m² en heeft 5 kamers kamers waarvan 4 slaapkamers. De geschatte waarde van deze woning is € 375.000.

Bekijk alle woningen in Campen

Gegevens van Eengezinswoning, tussenwoning

Bouwjaar
1989
Geschatte waarde
€ 375.000
Oppervlakte
125 m2
Inhoud
450 m3
Aantal kamers
5 kamers
Slaapkamers
4
Soort bouw
Bestaande bouw
Eigendomssituatie
Volle eigendom
Tuin
Voortuin en achtertuin
Achtertuin
94 m² (14,5m diep en 6,5m breed)

Voorzieningen in de buurt

Boodschappen2,0 km
Grote supermarkt0,9 km
Cafetaria2,2 km
Restaurant0,9 km
Huisarts2,5 km
Ziekenhuis3,5 km
Kinderdagverblijf1,1 km
BSO1,4 km
Alle voorzieningen in Campen

Binnenkijken bij Nedercamp 34 te Houten

Meer meldingen in deze omgeving

Nieuw bedrijf
November 2025
Tournooicamp 8, 3992CM Houten

Nieuw bedrijf
November 2025
Bovencamp 55, 3992RX Houten

Binnenkijken bij
Woensdag 29-10-2025
Meercamp 57, 3992RH Houten

Binnenkijken bij
Donderdag 9-10-2025
Schegcamp 11, 3992SB Houten

Nieuw bedrijf
Oktober 2025
Scherpencamp 35, 3992RC Houten

Nieuw bedrijf
Oktober 2025
Scherpencamp 35, 3992RC Houten

Nieuw bedrijf
Oktober 2025
Bovencamp 44, 3992RZ Houten

Binnenkijken bij
Donderdag 25-9-2025
Hoorncamp 18, 3992RS Houten

Direct een e-mail ontvangen bij nieuwe meldingen in deze regio?

Meld je dan GRATIS aan voor de Oozo Alert service voor Campen

Instellen

Meer nieuws in Campen

Weten hoe eenvoudig het is om af te vallen? Zonder pillen en smeersels en zonder je in het zweet te werken!
Kijk op eenvoudig-afvallen.nl

© 2012 - 2025 OOZO.nl - info@oozo.nl - Gegevens verwijderen? | Disclaimer | Privacy statement