Woning Molenaarserf 91 Houten

Molenaarserf 91, 3991KS Houten

Ontvang updates voor Erven

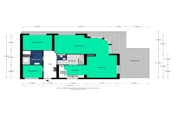
Het adres van deze woning uit 1995 is Molenaarserf 91 te Houten. Het pand heeft een oppervlakte van 98m² en heeft 3 kamers kamers waarvan 2 slaapkamers. De geschatte waarde van deze woning is € 398.000.

Bekijk alle woningen in Erven

Gegevens van Penthouse (appartement)

Bouwjaar
1995
Geschatte waarde
€ 398.000
Oppervlakte
98 m2
Inhoud
297 m3
Aantal kamers
3 kamers
Slaapkamers
2
Badkamers
1 badkamer
Soort bouw
Bestaande bouw
Eigendomssituatie
Volle eigendom
Ligging
In woonwijk en vrij uitzicht

Voorzieningen in de buurt

Boodschappen0,7 km
Grote supermarkt0,8 km
Cafetaria0,7 km
Restaurant0,7 km
Huisarts0,7 km
Ziekenhuis1,1 km
Kinderdagverblijf0,7 km
BSO0,7 km
Alle voorzieningen in Erven

Binnenkijken bij Molenaarserf 91 te Houten

Meer meldingen in deze omgeving

112 melding
Zaterdag 11-10-2025 om 09:26
Stationserf, Houten

Binnenkijken bij
Donderdag 9-10-2025
Heemraadserf 18, 3991KA Houten

Binnenkijken bij
Donderdag 9-10-2025
Heemraadserf 15, 3991KA Houten

Nieuw bedrijf
Oktober 2025
Tolgaarderserf 30, 3991KC Houten

112 melding
Vrijdag 19-9-2025 om 21:19
Tolgaarderserf, Houten

112 melding
Vrijdag 19-9-2025 om 21:19
Tolgaarderserf, Houten

Binnenkijken bij
Vrijdag 19-9-2025
Molenaarserf 70, 3991KR Houten

Binnenkijken bij
Vrijdag 19-9-2025
Richterserf 12, 3991KE Houten

Direct een e-mail ontvangen bij nieuwe meldingen in deze regio?

Meld je dan GRATIS aan voor de Oozo Alert service voor Erven

Instellen

Meer nieuws in Erven

Weten hoe eenvoudig het is om af te vallen? Zonder pillen en smeersels en zonder je in het zweet te werken!
Kijk op eenvoudig-afvallen.nl

© 2012 - 2025 OOZO.nl - info@oozo.nl - Gegevens verwijderen? | Disclaimer | Privacy statement