Woning Veldwachterserf 11 Houten

Veldwachterserf 11, 3991KV Houten

Ontvang updates voor Erven

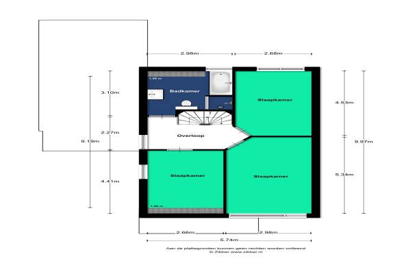
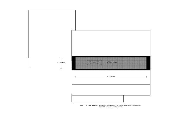
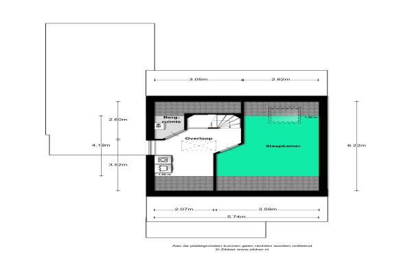
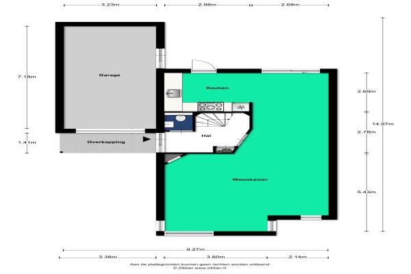
Het adres van deze woning uit 1996 is Veldwachterserf 11 te Houten. Het pand heeft een oppervlakte van 141m² en een perceeloppervlakte van 267m² en heeft 5 kamers kamers waarvan 4 slaapkamers. De geschatte waarde van deze woning is € 489.000.

Bekijk alle woningen in Erven

Gegevens van Eengezinswoning, 2-onder-1-kapwoning

Bouwjaar
1996
Geschatte waarde
€ 489.000
Oppervlakte
141 m2
Inhoud
573 m3
Aantal kamers
5 kamers
Slaapkamers
4
Badkamers
1 badkamer en 1 apart toilet
Soort bouw
Bestaande bouw
Eigendomssituatie
Volle eigendom
Ligging
In woonwijk en vrij uitzicht
Tuin
Achtertuin en voortuin
Achtertuin
119 m² (12,5m diep en 9,5m breed)

Voorzieningen in de buurt

Boodschappen0,7 km
Grote supermarkt0,8 km
Cafetaria0,7 km
Restaurant0,7 km
Huisarts0,7 km
Ziekenhuis1,1 km
Kinderdagverblijf0,7 km
BSO0,7 km
Alle voorzieningen in Erven

Binnenkijken bij Veldwachterserf 11 te Houten

Meer meldingen in deze omgeving

112 melding
Zaterdag 11-10-2025 om 09:26
Stationserf, Houten

Binnenkijken bij
Donderdag 9-10-2025
Heemraadserf 18, 3991KA Houten

Binnenkijken bij
Donderdag 9-10-2025
Heemraadserf 15, 3991KA Houten

Nieuw bedrijf
Oktober 2025
Tolgaarderserf 30, 3991KC Houten

112 melding
Vrijdag 19-9-2025 om 21:19
Tolgaarderserf, Houten

112 melding
Vrijdag 19-9-2025 om 21:19
Tolgaarderserf, Houten

Binnenkijken bij
Vrijdag 19-9-2025
Molenaarserf 70, 3991KR Houten

Binnenkijken bij
Vrijdag 19-9-2025
Richterserf 12, 3991KE Houten

Direct een e-mail ontvangen bij nieuwe meldingen in deze regio?

Meld je dan GRATIS aan voor de Oozo Alert service voor Erven

Instellen

Meer nieuws in Erven

Weten hoe eenvoudig het is om af te vallen? Zonder pillen en smeersels en zonder je in het zweet te werken!
Kijk op eenvoudig-afvallen.nl

© 2012 - 2025 OOZO.nl - info@oozo.nl - Gegevens verwijderen? | Disclaimer | Privacy statement